Prodaja
Изнајмљивање
Блог
O nama
+ Додај понуду
Мени
Popis ponuda
263 000 €
(3 704 € / м²)
Продажа
3
1
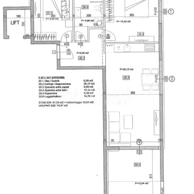
71 м²
Seget
Прикажи на мапи
Додај у омиљене
Делити
спаваћа соба
1
površina
71 м²
kupatila
1
лифт
Не
parking
Не
држава
Ostalo
podrum
Не
тераса
Не
Opis
Преведи на engleski
Agencija za nekretnine Angelus nekretnine Vam nude na prodaju komforan dvosoban stan u NOVOGRADNJI na mirnoj lokaciji, udaljen svega 300 m od mora.
L...
Prikaži ceo opis
Parametri
Parametri
Власништво:
Ostalo
Стање:
Ostalo
Тип градње:
Ostalo
Тип грејања:
Ostalo
Nameštaj:
Ostalo
Prikazati sve parametre
Starost ponude:
29 dana
Ažurirano:
17 dana
Пријава огласа
Lokacija
Seget
Lokacija je približna, ne znamo tačnu adresu.
Zatražiti tačnu adresu
Прегледај карту
Комунална инфраструктура
Angelus nekretnine d.o.o.
Venći Čulić Meić
Прикажи Е-маил
Прикажи телефон
Контактовати продавац
Angelus nekretnine d.o.o.
Venći Čulić Meić
Прикажи Е-маил
Прикажи телефон
Контактовати продавац
Slične ponude
|
Сличне понуде у иностранству
|
Sale
Apartments
Хрватска