SUPA24
Остало
Остало
Остало
Остало
Остало
390 000 €
(8 864 € / м²)
Распродаја
1
1
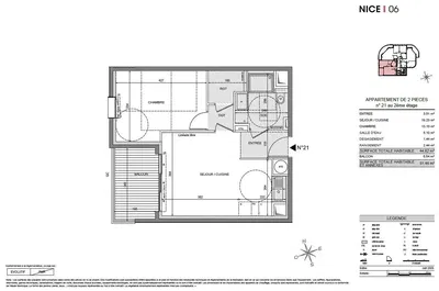
44 м²
Boulevard Général Louis Delfino, Nice

спаваћа соба1
равно44 м²
купатила1
лифтНе
паркингНе
државаДруго
подрумНе
терасаНе

Опис

Nice Centre Harbour, Alpes-Maritimes 600m to the harbour, in the heart of Nice liveliest and prettiest streets, with all amenities, the beach and all...

Параметри

Параметри

Власништво:
Друго
Држава:
Друго
Тип зграде:
Друго
Тип грејања:
Друго
Опрема:
Друго
Старост понуде: 1дана
Ажурирано: 1дана

Локалитети

Boulevard Général Louis Delfino, Nice
Локација је приближна, не знамо тачну адресу.

Грађански садржаји

Your Overseas Home


Your Overseas Home

Слични огласи

Слично у иностранству