Распродаја
Закуп
Блог
О нама
+ Додај својину
Мени
Листа понуда
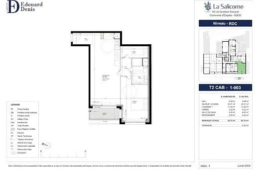
212 500 €
(4 009 € / м²)
Распродаја
2
1
53 м²
Avenue du Vieux Moulin, Étaples
Прикажи на мапи
Додај у омиљене
Дели
спаваћа соба
2
равно
53 м²
купатила
1
лифт
Не
паркинг
Не
држава
Друго
подрум
Не
тераса
Не
Опис
Преведи на Енглески
ETAPLES prox port et centre:
Découvrez cet appartement neuf de 53.74m2 avec balcon et parking en résidence avec ascenseur ,
il offre une entrée, un c...
Прикажи цео опис
Параметри
Параметри
Власништво:
Друго
Држава:
Друго
Тип зграде:
Друго
Тип грејања:
Друго
Опрема:
Друго
Старост понуде:
4дана
Ажурирано:
4дана
Пријави оглас
Локалитети
Avenue du Vieux Moulin, Étaples
Локација је приближна, не знамо тачну адресу.
Захтевајте тачну адресу
Увећај мапу
Грађански садржаји
Propriétés Privées
Прикажи телефон
Контактирајте продавца
Propriétés Privées
Прикажи телефон
Контактирајте продавца
Слични огласи
|
Слично у иностранству
|
Продаја
Станови
Француска