Распродаја
Закуп
Блог
О нама
+ Додај својину
Мени
Листа понуда
4
4
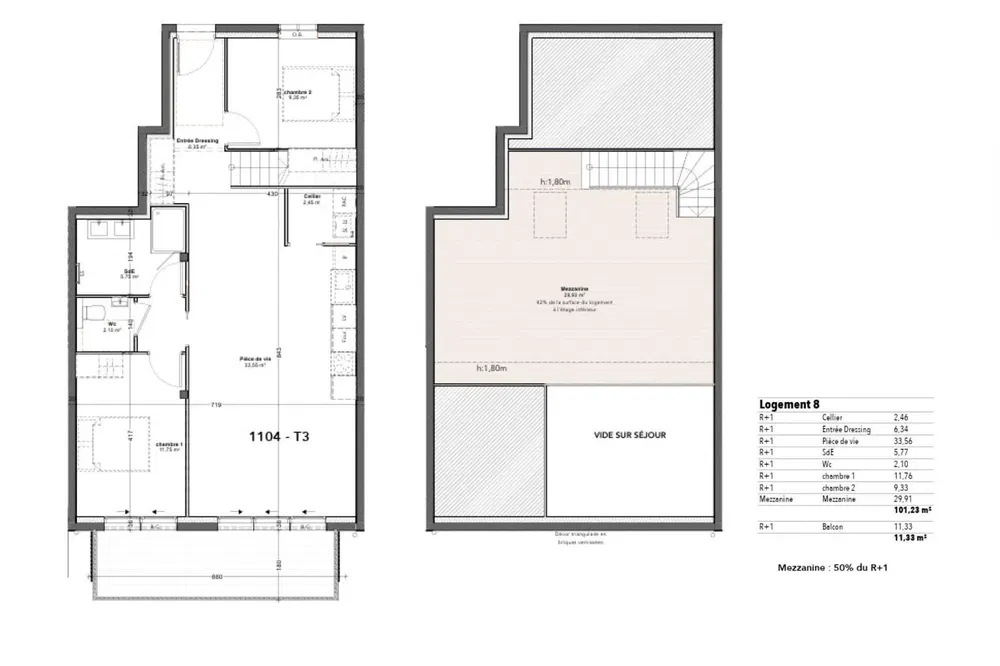
866 900 €
(8 583 € / м²)
Распродаја
3
1
101 м²
Allée de Montmeillant, Châtelaillon-Plage
Прикажи на мапи
Додај у омиљене
Дели
спаваћа соба
3
равно
101 м²
купатила
1
лифт
Да
паркинг
Не
држава
Друго
подрум
Не
тераса
Не
Опис
Преведи на Енглески
iad France - Amélie Davin (06 50 71 40 30) vous propose : UNE ADRESSE UNIQUE, UN EMPLACEMENT EXCEPTIONNEL FACE A LA GRANDE PLAGE DE CHATELAILLON-PLAGE...
Прикажи цео опис
Параметри
Опрема и карактеристике
Лифт
Параметри
Власништво:
Друго
Држава:
Друго
Тип зграде:
Друго
Тип грејања:
Друго
Опрема:
Друго
Старост понуде:
4дана
Ажурирано:
4дана
Пријави оглас
Локалитети
Allée de Montmeillant, Châtelaillon-Plage
Локација је приближна, не знамо тачну адресу.
Захтевајте тачну адресу
Увећај мапу
Грађански садржаји
IAD France
Прикажи телефон
Контактирајте продавца
IAD France
Прикажи телефон
Контактирајте продавца
Слични огласи
|
Слично у иностранству
|
Продаја
Станови
Француска