Распродаја
Закуп
Блог
О нама
+ Додај својину
Мени
Листа понуда
5
259 000 €
(3 866 € / м²)
Распродаја
3
1
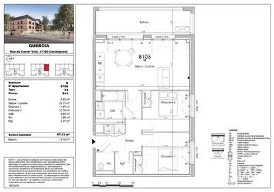
67 м²
Rue de l'Église, Castelginest
Прикажи на мапи
Додај у омиљене
Дели
спаваћа соба
3
равно
67 м²
купатила
1
лифт
Не
паркинг
Не
држава
Друго
подрум
Не
тераса
Не
Опис
Преведи на Енглески
iad France - Marc Franc (07 80 36 67 20) vous propose : OPPORTUNITÉ -T3 - Résidence 'QUERCIA' à CASTELGINESTRésidence 'QUERCIA', l'équilibre parfait, ...
Прикажи цео опис
Параметри
Параметри
Власништво:
Друго
Држава:
Друго
Тип зграде:
Друго
Тип грејања:
Друго
Опрема:
Друго
Старост понуде:
19дана
Ажурирано:
5дана
Пријави оглас
Локалитети
Rue de l'Église, Castelginest
Локација је приближна, не знамо тачну адресу.
Захтевајте тачну адресу
Увећај мапу
Грађански садржаји
IAD France
Прикажи телефон
Контактирајте продавца
IAD France
Прикажи телефон
Контактирајте продавца
Слични огласи
|
Слично у иностранству
|
Продаја
Станови
Француска