Prodaja
Изнајмљивање
Блог
O nama
+ Додај понуду
Мени
Popis ponuda
6
6
6
107 000 €
(2 816 € / м²)
Продажа
2
1
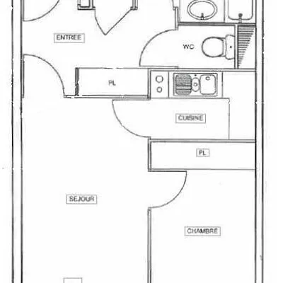
38 м²
PANTIN
Прикажи на мапи
Додај у омиљене
Делити
спаваћа соба
1
površina
38 м²
kupatila
1
лифт
Да
parking
Не
држава
Ostalo
podrum
Не
тераса
Не
Opis
Преведи на engleski
iad France - Claire Puissant vous propose: Quartier Hoche - T2 avec balcon + place de parking en sous-sol**** INVESTISSEUR- BAIL COMMERCIAL. LMNP***. ...
Prikaži ceo opis
Parametri
Oprema & karakteristike
лифт
Parametri
Власништво:
Ostalo
Стање:
Ostalo
Energetska efikasnost:
C - Štednja
Тип градње:
Ostalo
Тип грејања:
Ostalo
Prikazati sve parametre
Starost ponude:
333 dana
Ažurirano:
333 dana
Пријава огласа
Lokacija
PANTIN
Lokacija je približna, ne znamo tačnu adresu.
Zatražiti tačnu adresu
Прегледај карту
Комунална инфраструктура
IAD France
Прикажи телефон
Контактовати продавац
IAD France
Прикажи телефон
Контактовати продавац
Slične ponude
|
Сличне понуде у иностранству
|
Sale
Apartments
Француска