Prodaja
Изнајмљивање
Блог
O nama
+ Додај понуду
Мени
Popis ponuda
509 000 €
(7 831 € / м²)
Продажа
3
1
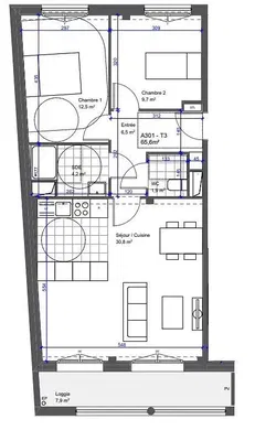
65 м²
PANTIN
Прикажи на мапи
Додај у омиљене
Делити
спаваћа соба
3
površina
65 м²
kupatila
1
лифт
Не
parking
Не
држава
Ostalo
podrum
Не
тераса
Не
Opis
Преведи на engleski
Fiche N°Id-LGB173289 : Pantin, 3 Pi?ces 3p 65m2 loggia 8m2 sud ouest 1 pk d'environ 65 m2 comprenant 3 piece(s) dont 2 chambre(s) + Loggia de 8 m2 - ...
Prikaži ceo opis
Parametri
Parametri
Власништво:
Ostalo
Стање:
Ostalo
Тип градње:
Ostalo
Тип грејања:
Ostalo
Nameštaj:
Ostalo
Starost ponude:
1 dana
Ažurirano:
1 dana
Пријава огласа
Lokacija
PANTIN
Lokacija je približna, ne znamo tačnu adresu.
Zatražiti tačnu adresu
Прегледај карту
Комунална инфраструктура
Réseau Immo-diffusion
Прикажи телефон
Контактовати продавац
Réseau Immo-diffusion
Прикажи телефон
Контактовати продавац
Slične ponude
|
Сличне понуде у иностранству
|
Продаја
Станови
Француска