Распродаја
Закуп
Блог
О нама
+ Додај својину
Мени
Листа понуда
26
26
26
3 190 000 Kč
(75 952 Kč / м²)
Распродаја
2
1
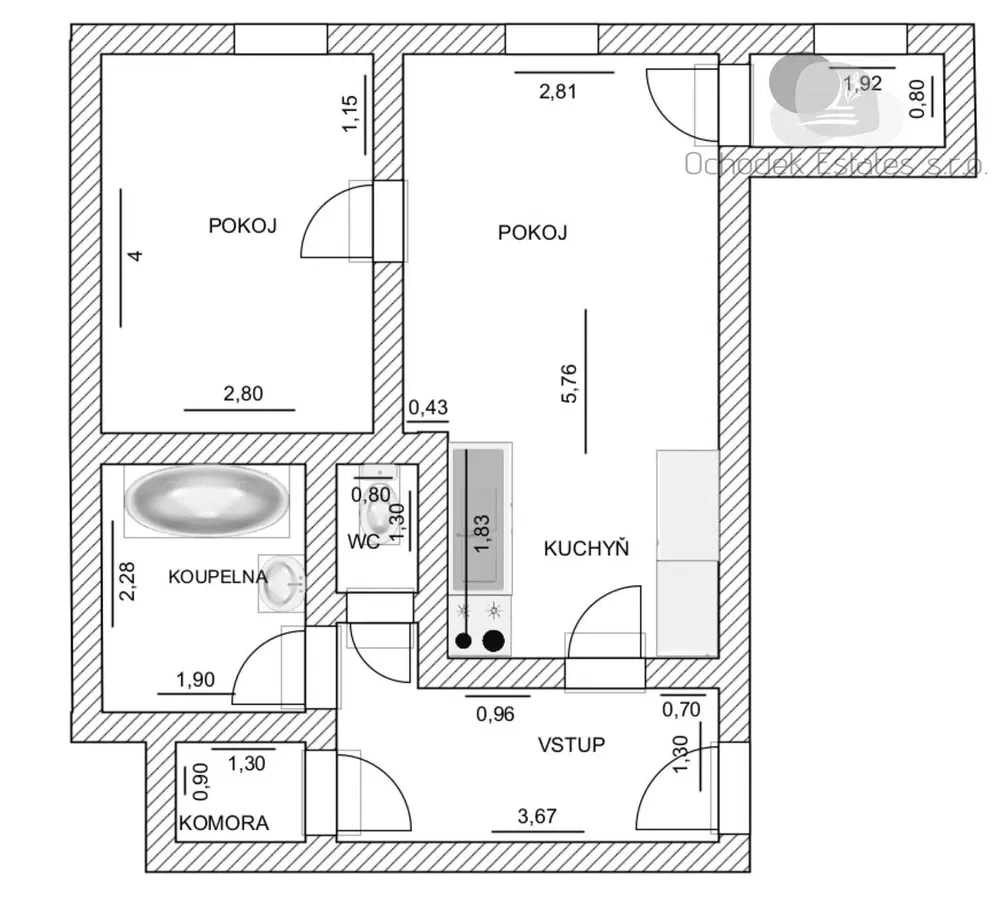
42 м²
U Oblouku, Острава
Прикажи на мапи
Додај у омиљене
Дели
спаваћа соба
2
равно
42 м²
купатила
1
лифт
Не
паркинг
Не
држава
Друго
подрум
Не
тераса
Не
Опис
Преведи на Енглески
Ne vždy se Vám naskytne možnost bydlet v takto ikonickém domě, který zná snad každý. Je totiž kulturní památkou. Ano, bydlet v takovém domě může mít j...
Прикажи цео опис
Параметри
Генерисано од стране вештачке интелигенције
Одвојени тоалет
Параметри
Власништво:
Лично
Држава:
Друго
Енергетски интензитет:
Г - Изузетно расипно
Тип зграде:
Цигла
Тип грејања:
Централни даљински управљач
Прикажи све параметре
Старост понуде:
50дана
Ажурирано:
3дана
Пријави оглас
Локалитети
U Oblouku, Острава
Локација је приближна, не знамо тачну адресу.
Захтевајте тачну адресу
Увећај мапу
Грађански садржаји
Ochodek Estates s.r.o.
Petr Pouč
Прикажи имејл
Прикажи телефон
Контактирајте продавца
Ochodek Estates s.r.o.
Petr Pouč
Прикажи имејл
Прикажи телефон
Контактирајте продавца
Слични огласи
|
Слично у иностранству
|
Продаја
Станови
Чешка
Moravskoslezský kraj
Острава
Poruba