Распродаја
Закуп
Блог
О нама
+ Додај својину
Мени
Листа понуда
15
15
15
Цена на захтев
Распродаја
2
1
40 м²
Jablonecká
Прикажи на мапи
Додај у омиљене
Дели
спаваћа соба
2
равно
40 м²
купатила
1
лифт
Не
паркинг
Не
држава
Оригинално стање
подрум
Да
тераса
Не
Опис
Преведи на Енглески
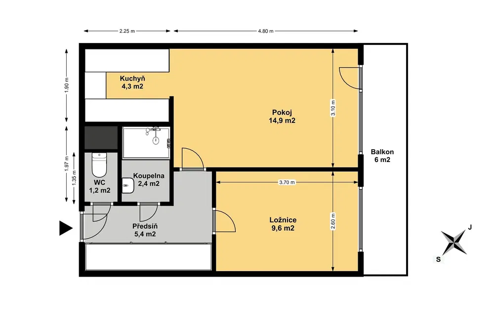
Adresa: Jablonecká 698/10, Prosek, pět minut na metro, 5 minut na nákupy, 5 minut do parku.
Výměra: 40 m² plus lodžie plus sklep.
Patro: 3., tak ak...
Прикажи цео опис
Параметри
Опрема и карактеристике
Лођа
Параметри
Власништво:
Лично
Држава:
Оригинално стање
Енергетски интензитет:
Б - Веома економично
Тип зграде:
Панел
Тип грејања:
Централни даљински управљач
Прикажи све параметре
Старост понуде:
1дана
Ажурирано:
1дана
Пријави оглас
Локалитети
Jablonecká
Локација је приближна, не знамо тачну адресу.
Захтевајте тачну адресу
Увећај мапу
Грађански садржаји
Albína Kaškarová
Albína Kaškarová
Прикажи имејл
Прикажи телефон
Контактирајте продавца
Albína Kaškarová
Albína Kaškarová
Прикажи имејл
Прикажи телефон
Контактирајте продавца
Слични огласи
Слично у иностранству
Продаја
Станови
Чешка
Праг
Prosek
Prosek