Распродаја
Закуп
Блог
О нама
+ Додај својину
Мени
Листа понуда
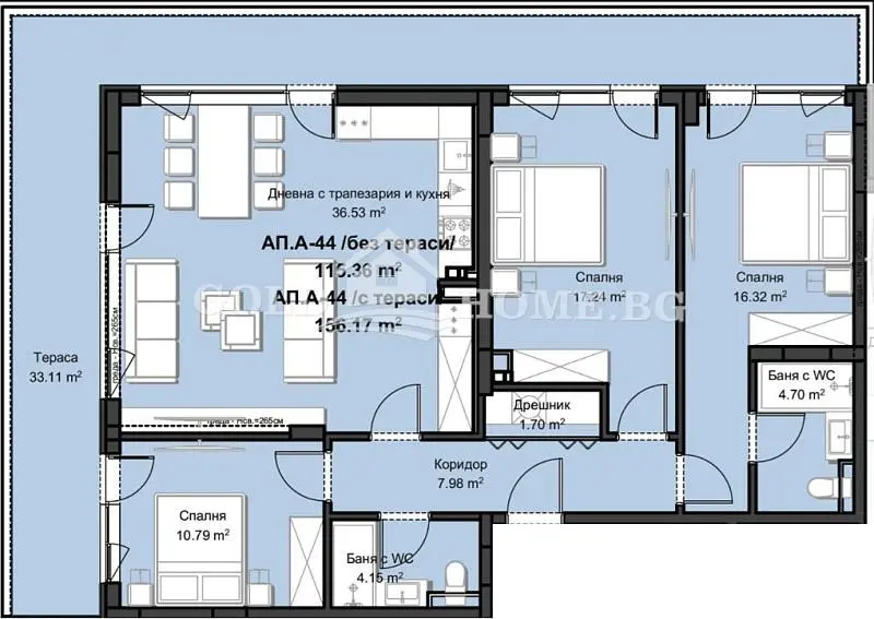
296 390 €
(1 497 € / м²)
Распродаја
Атипично
1
198 м²
Царевец
Прикажи на мапи
Додај у омиљене
Дели
спаваћа соба
atypical
равно
198 м²
купатила
1
лифт
Не
паркинг
Не
држава
Друго
подрум
Не
тераса
Не
Опис
Преведи на Енглески
💥ПЛАТЕТЕ САМО 20 % СЕГА! 💯 ЦЕНИ БЕЗ КОМИСИОН ОТ КУПУВАЧА !💥 ОФЕРТА:18556 -'ГОЛД ИМОТИ' има удоволствието да Ви представи един нов проект със схема ...
Прикажи цео опис
Параметри
Параметри
Власништво:
Друго
Држава:
Друго
Тип зграде:
Друго
Тип грејања:
Друго
Опрема:
Друго
Старост понуде:
4дана
Ажурирано:
4дана
Пријави оглас
Локалитети
Царевец
Локација је приближна, не знамо тачну адресу.
Захтевајте тачну адресу
Увећај мапу
Грађански садржаји
ГОЛД ИМОТИ
Прикажи телефон
Контактирајте продавца
ГОЛД ИМОТИ
Прикажи телефон
Контактирајте продавца
Слични огласи
Слично у иностранству
Продаја
Станови
Бугарска