Распродаја
Закуп
Блог
О нама
+ Додај својину
Мени
Листа понуда
4
4
223 000 €
(2 065 € / м²)
Распродаја
Атипично
1
108 м²
Никола Станчев
Прикажи на мапи
Додај у омиљене
Дели
спаваћа соба
atypical
равно
108 м²
купатила
1
лифт
Не
паркинг
Не
држава
Друго
подрум
Не
тераса
Не
Опис
Преведи на Енглески
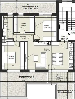
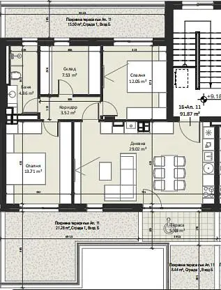
Агенция за недвижими имоти 'Имотен Център България' Ви предлага просторен тристаен апартамент във висококачествено строителство в Малинова Долина. ЮГ...
Прикажи цео опис
Параметри
Генерисано од стране вештачке интелигенције
Тераса
Параметри
Власништво:
Друго
Држава:
Друго
Тип зграде:
Друго
Тип грејања:
Друго
Опрема:
Друго
Старост понуде:
38дана
Ажурирано:
21дана
Пријави оглас
Локалитети
Никола Станчев
Локација је приближна, не знамо тачну адресу.
Захтевајте тачну адресу
Увећај мапу
Грађански садржаји
ИМОТЕН ЦЕНТЪР БЪЛГАРИЯ 2021
Прикажи телефон
Контактирајте продавца
ИМОТЕН ЦЕНТЪР БЪЛГАРИЯ 2021
Прикажи телефон
Контактирајте продавца
Слични огласи
|
Слично у иностранству
|
Продаја
Станови
Бугарска