Распродаја
Закуп
Блог
О нама
+ Додај својину
Мени
Листа понуда
4
4
108 350 €
(1 117 € / м²)
Распродаја
Атипично
1
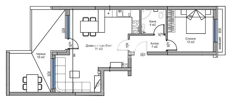
97 м²
Прикажи на мапи
Додај у омиљене
Дели
спаваћа соба
atypical
равно
97 м²
купатила
1
лифт
Не
паркинг
Не
држава
Друго
подрум
Не
тераса
Не
Опис
Преведи на Енглески
Оферта 67901 - Специално предложение - Новоизградена сграда, намираща се в престижен и предпочитан район. Разпределения - Предлагаме на Вашето внима...
Прикажи цео опис
Параметри
Генерисано од стране вештачке интелигенције
Тераса
Параметри
Власништво:
Друго
Држава:
Друго
Тип зграде:
Друго
Тип грејања:
Друго
Опрема:
Друго
Старост понуде:
35дана
Ажурирано:
35дана
Пријави оглас
Локалитети
Локација је приближна, не знамо тачну адресу.
Захтевајте тачну адресу
Увећај мапу
Грађански садржаји
КОНДОР - НЕДВИЖИМИ ИМОТИ
Прикажи телефон
Контактирајте продавца
КОНДОР - НЕДВИЖИМИ ИМОТИ
Прикажи телефон
Контактирајте продавца
Слични огласи
|
Слично у иностранству
|
Продаја
Станови
Бугарска