Распродаја
Закуп
Блог
О нама
+ Додај својину
Мени
Листа понуда
5
280 000 €
(1 772 € / м²)
Распродаја
Атипично
1
158 м²
Прикажи на мапи
Додај у омиљене
Дели
спаваћа соба
atypical
равно
158 м²
купатила
1
лифт
Не
паркинг
Не
држава
Друго
подрум
Не
тераса
Не
Опис
Преведи на Енглески
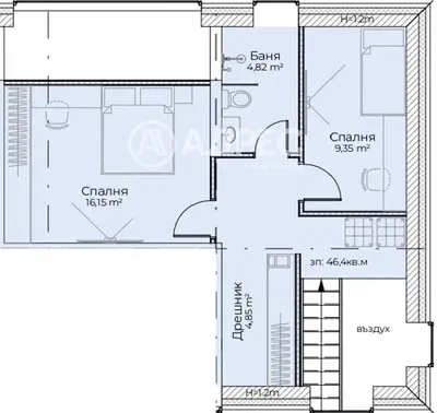
Адрес Недвижими Имоти представя на вашето внимание мезонет с площ от 149 кв.м, разположен на две нива. Жилището разполага с три спални, три бани и еди...
Прикажи цео опис
Параметри
Параметри
Власништво:
Друго
Држава:
Друго
Тип зграде:
Друго
Тип грејања:
Друго
Опрема:
Друго
Старост понуде:
66дана
Ажурирано:
34дана
Пријави оглас
Локалитети
Локација је приближна, не знамо тачну адресу.
Захтевајте тачну адресу
Увећај мапу
Грађански садржаји
АДРЕС НЕДВИЖИМИ ИМОТИ
Прикажи телефон
Контактирајте продавца
АДРЕС НЕДВИЖИМИ ИМОТИ
Прикажи телефон
Контактирајте продавца
Слични огласи
|
Слично у иностранству
|
Продаја
Станови
Бугарска