Распродаја
Закуп
Блог
О нама
+ Додај својину
Мени
Листа понуда
15
15
15
229 000 €
(1 497 € / м²)
Распродаја
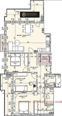
Атипично
1
153 м²
Христо Ботев
Прикажи на мапи
Додај у омиљене
Дели
спаваћа соба
atypical
равно
153 м²
купатила
1
лифт
Не
паркинг
Не
држава
Друго
подрум
Не
тераса
Не
Опис
Преведи на Енглески
🌳 Esteti Park South 🌳 📌 гр. Стара Загора, ул. Отец Паисий 10 📌 🏡 Пентхаус състоящ се от: антре, дневна с кухня, 3 спални, баня с тоалетна, килер...
Прикажи цео опис
Параметри
Параметри
Власништво:
Друго
Држава:
Друго
Тип зграде:
Друго
Тип грејања:
Друго
Опрема:
Друго
Старост понуде:
117дана
Ажурирано:
23дана
Пријави оглас
Локалитети
Христо Ботев
Локација је приближна, не знамо тачну адресу.
Захтевајте тачну адресу
Увећај мапу
Грађански садржаји
ЕСТЕТИ - СТРОИТЕЛНА КОМПАНИЯ
Прикажи телефон
Контактирајте продавца
ЕСТЕТИ - СТРОИТЕЛНА КОМПАНИЯ
Прикажи телефон
Контактирајте продавца
Слични огласи
|
Слично у иностранству
|
Продаја
Станови
Бугарска