Predaj
Prenájom
Blog
O nás
+ Pridať nehnuteľnosť
Menu
Výpis ponúk
10
10
10
4 495 €
(37 € / m²)
Prenájom
2+1
123 m²
Calle de Galileo, Madrid
Zobraziť na mape
Do obľúbených
Zdieľať
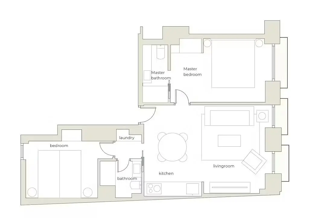
labels.rooms
2+1
plocha
123 m²
kúpeľne
1
výťah
Nie
parkovanie
Nie
stav
Ostatné
suterén
Nie
terasa
Nie
Opis
Preložiť do slovenčina
For more details, please visit https://housinganywhere.com/room/ut1535702/es/Madrid/calle-de-galileo?utm_medium=affiliate&utm_source=list_globally&aff...
Zobraziť celý popis
Parametre
Vybavenie & vlastnosti
Klimatizácia
Parametre
Vlastníctvo:
Ostatné
stav:
Ostatné
Typ budovy:
Ostatné
Typ vykurovania:
Ostatné
Zariadenie:
Zariadený
Vek ponuky:
361 dní
Aktualizovaný:
5 dní
Nahlásiť inzerát
Lokalita
Calle de Galileo, Madrid
Lokalita je orientačná, nepoznáme presnú adresu.
Požiadať o presnú adresu
Zväčšiť mapu
Občianska vybavenosť
HousingAnywhere
Zobraziť telefón
Kontaktovať predajcu
HousingAnywhere
Zobraziť telefón
Kontaktovať predajcu
Podobné ponuky
|
Podobné v zahraničí
|
Prenájom
Byty
Španielsko