Predaj
Prenájom
Blog
O nás
+ Pridať nehnuteľnosť
Menu
Výpis ponúk
10
10
10
520 000 €
(2 385 € / m²)
Predaj
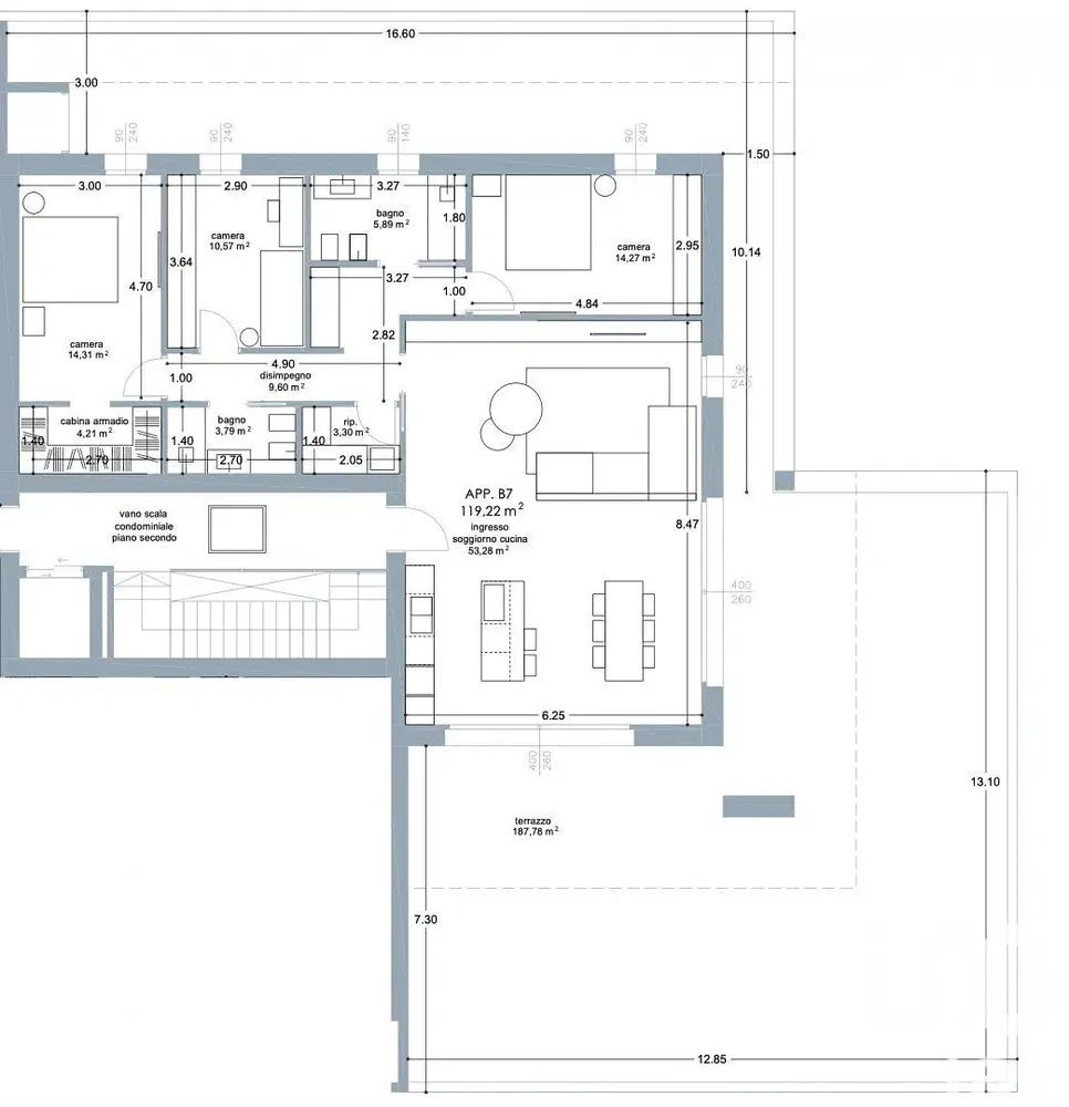
4+1
218 m²
Via Chiesa, Vigonza
Zobraziť na mape
Do obľúbených
Zdieľať
labels.rooms
4+1
plocha
218 m²
kúpeľne
2+
výťah
Áno
parkovanie
Nie
stav
Ostatné
suterén
Nie
terasa
Áno
Opis
Preložiť do slovenčina
ATTICO 3 CAMERE CON TERRAZZO PANORAMICO DI 187 MQ - SAN VITO - VIGONZA (PADOVA)
Dove ogni giorno sa di casa, e ogni dettaglio parla di futuro.
In ...
Zobraziť celý popis
Parametre
Vybavenie & vlastnosti
Výťah
Garáž
Parametre
Vlastníctvo:
Ostatné
stav:
Ostatné
Energetická náročnosť:
A - Extrémne úsporná
Typ budovy:
Ostatné
Typ vykurovania:
Ostatné
Zobraziť všetky parametre
Vek ponuky:
9 dní
Aktualizovaný:
9 dní
Nahlásiť inzerát
Lokalita
Via Chiesa, Vigonza
Lokalita je orientačná, nepoznáme presnú adresu.
Požiadať o presnú adresu
Zväčšiť mapu
Občianska vybavenosť
SERENA MARCHESAN
Zobraziť telefón
Kontaktovať predajcu
SERENA MARCHESAN
Zobraziť telefón
Kontaktovať predajcu
Podobné ponuky
|
Podobné v zahraničí
|
Predaj
Byty
Taliansko