Predaj
Prenájom
Blog
O nás
+ Pridať nehnuteľnosť
Menu
Výpis ponúk
2
2
389 000 €
(6 593 € / m²)
Predaj
3+1
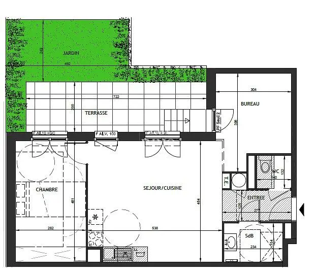
59 m²
Rue de Passe-Partout, Igny
Zobraziť na mape
Do obľúbených
Zdieľať
miestnosti
3+1
plocha
59 m²
kúpeľne
1
výťah
Áno
parkovanie
Nie
stav
Ostatné
suterén
Nie
terasa
Áno
Popis
Preložiť do slovenčiny
EXCEPTIONNEL F3 DE STANDING EN REZ-DE-JARDIN RÉSIDENCE 2026Dans une résidence neuve de très grand standing livrée en 2026, découvrez ce superbe F3...
Zobraziť celý popis
Parametre
Vybavenie & vlastnosti
Výťah
Záhrada
Parametre
Vlastníctvo:
Ostatné
Stav:
Ostatné
Energetická náročnosť:
B - Veľmi úsporná
Typ budovy:
Ostatné
Typ vykurovania:
Tepelné čerpadlo
Zobraziť všetky parametre
Vek ponuky:
5dní
Aktualizované:
5dní
Nahlásiť inzerát
Lokalita
Rue de Passe-Partout, Igny
Lokalita je orientačná, nepoznáme presnú adresu.
Požiadať o presnú adresu
Zväčšiť mapu
Občianska vybavenosť
Ami Igny
Zobraziť telefón
Kontaktovať predajcu
Ami Igny
Zobraziť telefón
Kontaktovať predajcu
Podobné inzeráty
|
Podobné v zahraničí
|
Predaj
Byty
Francúzsko