Predaj
Prenájom
Blog
O nás
+ Pridať nehnuteľnosť
Menu
Výpis ponúk
3
3
302 000 €
(3 082 € / m²)
Predaj
4+1
98 m²
Zobraziť na mape
Do obľúbených
Zdieľať
miestnosti
4+1
plocha
98 m²
kúpeľne
1
výťah
Nie
parkovanie
Nie
stav
Ostatné
suterén
Nie
terasa
Nie
Popis
Preložiť do slovenčiny
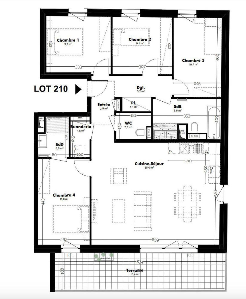
Appartement situé rue Marc Chagall de 98m2 situé face au parc du Sansonnet. Composé d'une entrée avec placard, d'une belle pièce-à-vivre avec cuisine ...
Zobraziť celý popis
Parametre
Vygenerované z AI
Otvorený obývací priestor
Parametre
Vlastníctvo:
Ostatné
Stav:
Ostatné
Typ budovy:
Ostatné
Typ vykurovania:
Ostatné
Vybavenie:
Ostatné
Vek ponuky:
398dní
Aktualizované:
397dní
Nahlásiť inzerát
Lokalita
Lokalita je orientačná, nepoznáme presnú adresu.
Požiadať o presnú adresu
Zväčšiť mapu
Občianska vybavenosť
Id Immobilier
Zobraziť telefón
Kontaktovať predajcu
Id Immobilier
Zobraziť telefón
Kontaktovať predajcu
Podobné inzeráty
|
Podobné v zahraničí
|
Predaj
Byty
Francúzsko