Predaj
Prenájom
Blog
O nás
+ Pridať nehnuteľnosť
Menu
Výpis ponúk
6
6
6
436 000 €
(4 955 € / m²)
Predaj
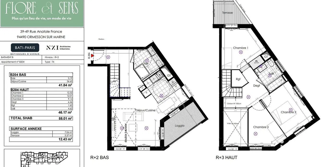
4+1
88 m²
ORMESSON-SUR-MARNE
Zobraziť na mape
Do obľúbených
Zdieľať
labels.rooms
4+1
plocha
88 m²
kúpeľne
1
výťah
Áno
parkovanie
Nie
stav
Ostatné
suterén
Nie
terasa
Áno
Opis
Preložiť do slovenčina
iad France - Jean Pontes (07 67 03 73 39) vous propose : UN CADRE DE VIE RARE AUX PORTES DE PARIS Superbe duplex au dernier étage avec terrasse et bal...
Zobraziť celý popis
Parametre
Vybavenie & vlastnosti
Výťah
Parametre
Vlastníctvo:
Ostatné
stav:
Ostatné
Typ budovy:
Ostatné
Typ vykurovania:
Ostatné
Zariadenie:
Ostatné
Zobraziť všetky parametre
Vek ponuky:
3 dní
Aktualizovaný:
3 dní
Nahlásiť inzerát
Lokalita
ORMESSON-SUR-MARNE
Lokalita je orientačná, nepoznáme presnú adresu.
Požiadať o presnú adresu
Zväčšiť mapu
Občianska vybavenosť
IAD France
Zobraziť telefón
Kontaktovať predajcu
IAD France
Zobraziť telefón
Kontaktovať predajcu
Podobné ponuky
|
Podobné v zahraničí
|
Predaj
Byty
Francúzsko