Predaj
Prenájom
Blog
O nás
+ Pridať nehnuteľnosť
Menu
Výpis ponúk
8
8
8
92 000 €
(2 421 € / m²)
Predaj
3+1
38 m²
Rouen
Zobraziť na mape
Do obľúbených
Zdieľať
labels.rooms
3+1
plocha
38 m²
kúpeľne
1
výťah
Áno
parkovanie
Nie
stav
Ostatné
suterén
Nie
terasa
Nie
Opis
Preložiť do slovenčina
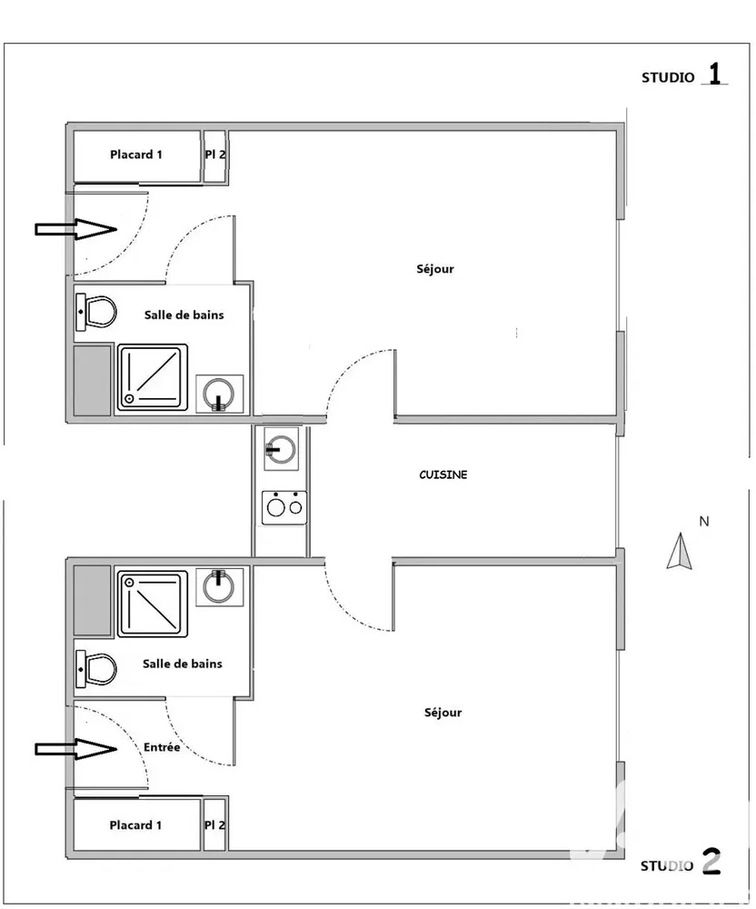
iad France - Laurent Guerbeau vous propose: IDEAL POUR INVESTISSEUR Double studio étudiant, séparés par une cuisine.comprenant : deux chambres, deux s...
Zobraziť celý popis
Parametre
Vybavenie & vlastnosti
Výťah
Parametre
Vlastníctvo:
Ostatné
stav:
Ostatné
Energetická náročnosť:
D - Menej úsporná
Typ budovy:
Ostatné
Typ vykurovania:
Ostatné
Zobraziť všetky parametre
Vek ponuky:
15 dní
Aktualizovaný:
3 dní
Nahlásiť inzerát
Lokalita
Rouen
Lokalita je orientačná, nepoznáme presnú adresu.
Požiadať o presnú adresu
Zväčšiť mapu
Občianska vybavenosť
IAD France
Zobraziť telefón
Kontaktovať predajcu
IAD France
Zobraziť telefón
Kontaktovať predajcu
Podobné ponuky
|
Podobné v zahraničí
|
Predaj
Byty
Francúzsko