Predaj
Prenájom
Blog
O nás
+ Pridať nehnuteľnosť
Menu
Výpis ponúk
4
4
382 900 €
(9 117 € / m²)
Predaj
2+1
42 m²
Les Saisies
Zobraziť na mape
Do obľúbených
Zdieľať
labels.rooms
2+1
plocha
42 m²
kúpeľne
1
výťah
Nie
parkovanie
Nie
stav
Ostatné
suterén
Nie
terasa
Nie
Opis
Preložiť do slovenčina
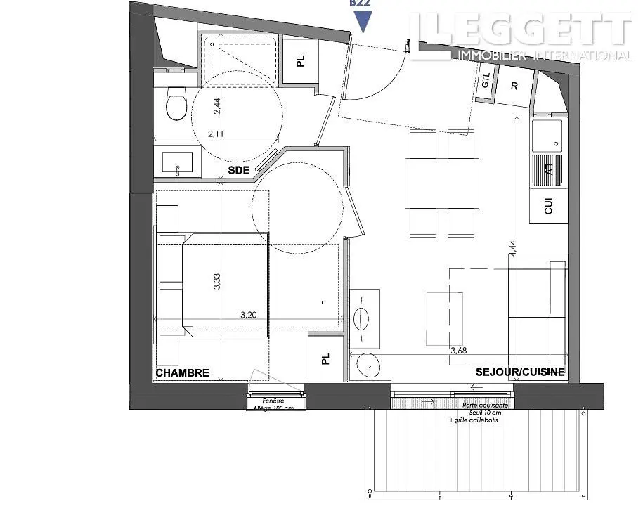
A41079SLE73 - NEW BUILD 42 m² one-bedroom apartment, PRM accessible, in a premium RE 2020 residence at the heart of Les Saisies.
Bright 20.79 m² livin...
Zobraziť celý popis
Parametre
Parametre
Vlastníctvo:
Ostatné
stav:
Ostatné
Typ budovy:
Ostatné
Typ vykurovania:
Ostatné
Zariadenie:
Ostatné
Vek ponuky:
14 dní
Aktualizovaný:
2 dní
Nahlásiť inzerát
Lokalita
Les Saisies
Lokalita je orientačná, nepoznáme presnú adresu.
Požiadať o presnú adresu
Zväčšiť mapu
Občianska vybavenosť
Leggett Immobilier
Zobraziť telefón
Kontaktovať predajcu
Leggett Immobilier
Zobraziť telefón
Kontaktovať predajcu
Podobné ponuky
|
Podobné v zahraničí
|
Predaj
Byty
Francúzsko