Predaj
Prenájom
Blog
O nás
+ Pridať nehnuteľnosť
Menu
Výpis ponúk
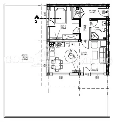
5
77 400 €
(900 € / m²)
Predaj
Atypický
86 m²
Остромила
Zobraziť na mape
Do obľúbených
Zdieľať
miestnosti
Atypický
plocha
86 m²
kúpeľne
1
výťah
Nie
parkovanie
Nie
stav
Ostatné
suterén
Nie
terasa
Nie
Popis
Preložiť do slovenčiny
📢 БЕЗ КОМИСИОН- ЦЕНИ ДИРЕКТНО ОТ ИНВЕСТИТОРА ! 📢 ОФЕРТА: 8530 ◻️ Агенция за недвижими имоти 'ГОЛД ИМОТИ' Ви представя новопостроен комплекс в кв.Ост...
Zobraziť celý popis
Parametre
Parametre
Vlastníctvo:
Ostatné
Stav:
Ostatné
Typ budovy:
Ostatné
Typ vykurovania:
Ostatné
Vybavenie:
Ostatné
Vek ponuky:
6dní
Aktualizované:
6dní
Nahlásiť inzerát
Lokalita
Остромила
Lokalita je orientačná, nepoznáme presnú adresu.
Požiadať o presnú adresu
Zväčšiť mapu
Občianska vybavenosť
ГОЛД ИМОТИ
Zobraziť telefón
Kontaktovať predajcu
ГОЛД ИМОТИ
Zobraziť telefón
Kontaktovať predajcu
Podobné inzeráty
|
Podobné v zahraničí
|
Predaj
Byty
Bulharsko