Predaj
Prenájom
Blog
O nás
+ Pridať nehnuteľnosť
Menu
Výpis ponúk
5
127 200 €
(1 514 € / m²)
Predaj
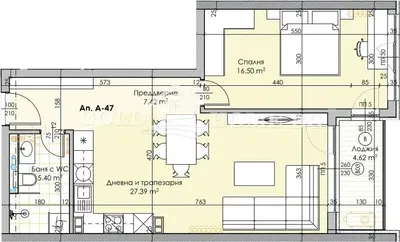
Atypický
84 m²
Zobraziť na mape
Do obľúbených
Zdieľať
miestnosti
Atypický
plocha
84 m²
kúpeľne
1
výťah
Nie
parkovanie
Nie
stav
Ostatné
suterén
Nie
terasa
Nie
Popis
Preložiť do slovenčiny
🔈БЕЗ КОМИСИОН ДИРЕКТНО ОТ ИНВЕСТИТОР! 🔈 ОФЕРТА : 2801 'ГОЛД ИМОТИ' Ви предлага двустайни апартаменти в новостроящ се комплекс, в непосредствена бл...
Zobraziť celý popis
Parametre
Vygenerované z AI
Terasa
Parametre
Vlastníctvo:
Ostatné
Stav:
Ostatné
Typ budovy:
Ostatné
Typ vykurovania:
Ostatné
Vybavenie:
Ostatné
Vek ponuky:
36dní
Aktualizované:
36dní
Nahlásiť inzerát
Lokalita
Lokalita je orientačná, nepoznáme presnú adresu.
Požiadať o presnú adresu
Zväčšiť mapu
Občianska vybavenosť
ГОЛД ИМОТИ
Zobraziť telefón
Kontaktovať predajcu
ГОЛД ИМОТИ
Zobraziť telefón
Kontaktovať predajcu
Podobné inzeráty
|
Podobné v zahraničí
|
Predaj
Byty
Bulharsko