Oferta
Alugar
Blog
Sobre nós
+ Adicionar propriedade
Menu
Lista de ofertas
9
9
9
566 000 €
(6 738 € / m²)
Oferta
4
1
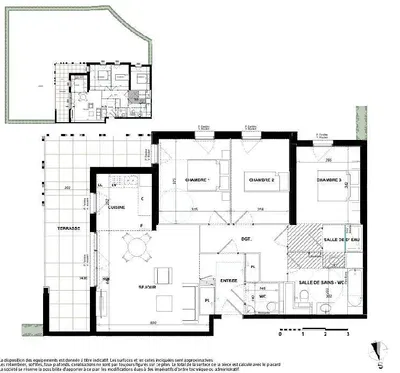
84 m²
Chemin des Rastines, Antibes
Mostrar no mapa
Adicionar aos favoritos
Compartilhar
quarto
4
plano
84 m²
banheiros
1
elevador
Sim
estacionamento
Não
estado
Outro
porão
Não
terraço
Sim
Descrição
Traduzir para Inglês
iad France - Judicaelle Louis (06 28 75 22 94) vous propose : Appartement 4 pièces avec vaste jardin privatif – AntibesSitué au cOEur d’Antibes, ce sp...
Mostrar descrição completa
Parâmetros
Equipamentos e recursos
elevador
Parâmetros
Propriedade:
Outro
Estado:
Outro
Tipo de construção:
Outro
Tipo de aquecimento:
Outro
Equipamento:
Outro
Idade da oferta:
7dias
Atualizado:
3dias
Denunciar anúncio
Localidades
Chemin des Rastines, Antibes
A localização é aproximada, não sabemos o endereço exato.
Solicite o endereço exato.
Ampliar mapa
serviços cívicos
IAD France
Mostrar telefone
Contate o vendedor
IAD France
Mostrar telefone
Contate o vendedor
Anúncios semelhantes
|
Semelhante no exterior
|
Venda
Apartamentos
França