Venda
Aluguel
Blog
Sobre nós
+ Adicionar oferta
Menu
Lista de ofertas
2
2
214 000 €
(3 567 € / m²)
Venda
3
1
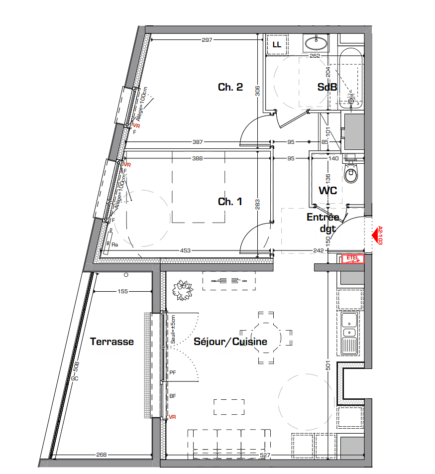
60 m²
Thionville
Mostrar no mapa
Favoritos
Compartilhar
quarto
3
área
60 m²
banheiros
1
elevador
Sim
estacionamento
Não
estado
Outros
porão
Não
terraço
Não
Descrição
Traduzir para inglês
Résidence Nouvel'R idéalement située allée Bel'air venez découvrir cet appartement situé au 1er étage avec ascenseur composé d'une entrée avec placar...
Mostrar descrição completa
Parâmetros
Equipamento & características
Elevador
Gerado a partir de IA
Espaço de estar aberto
Parâmetros
Propriedade:
Outros
estado:
Outros
Tipo de edifício:
Outros
Tipo de aquecimento:
Outros
Mobiliário:
Outros
Idade da oferta:
363 dias
Atualizado:
363 dias
Denunciar anúncio
Localização
Thionville
A localização é aproximada, não sabemos o endereço exato.
Solicitar endereço exato
Ampliar mapa
Instalações Cívicas
Id Immobilier
Mostrar telefone
Contatar vendedor
Id Immobilier
Mostrar telefone
Contatar vendedor
Anúncios semelhantes
|
Ofertas similares no estrangeiro
|
Venda
Apartamentos
França