Oferta
Alugar
Blog
Sobre nós
+ Adicionar propriedade
Menu
Lista de ofertas
7
7
7
229 000 €
(4 978 € / m²)
Oferta
2
1
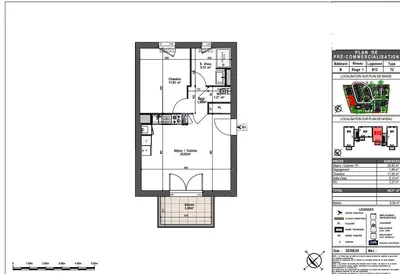
46 m²
Mostrar no mapa
Adicionar aos favoritos
Compartilhar
quarto
2
plano
46 m²
banheiros
1
elevador
Não
estacionamento
Não
estado
Outro
porão
Não
terraço
Não
Descrição
Traduzir para Inglês
Ce domaine immobilier se dévoile en avant-première dans le quartier prisé de La Fayette - Eblé à Angers. Cette résidence se trouve à seulement quelque...
Mostrar descrição completa
Parâmetros
Parâmetros
Propriedade:
Outro
Estado:
Outro
Tipo de construção:
Outro
Tipo de aquecimento:
Elétrico
Equipamento:
Outro
Mostrar todos os parâmetros
Idade da oferta:
43dias
Atualizado:
43dias
Denunciar anúncio
Localidades
A localização é aproximada, não sabemos o endereço exato.
Solicite o endereço exato.
Ampliar mapa
serviços cívicos
l'Adresse Anjou-Maine - l'Adresse Angers - Place du lycée
Mostrar telefone
Contate o vendedor
l'Adresse Anjou-Maine - l'Adresse Angers - Place du lycée
Mostrar telefone
Contate o vendedor
Anúncios semelhantes
|
Semelhante no exterior
|
Venda
Apartamentos
França