Oferta
Alugar
Blog
Sobre nós
+ Adicionar propriedade
Menu
Lista de ofertas
5
333 000 €
(3 112 € / m²)
Oferta
Atípico
1
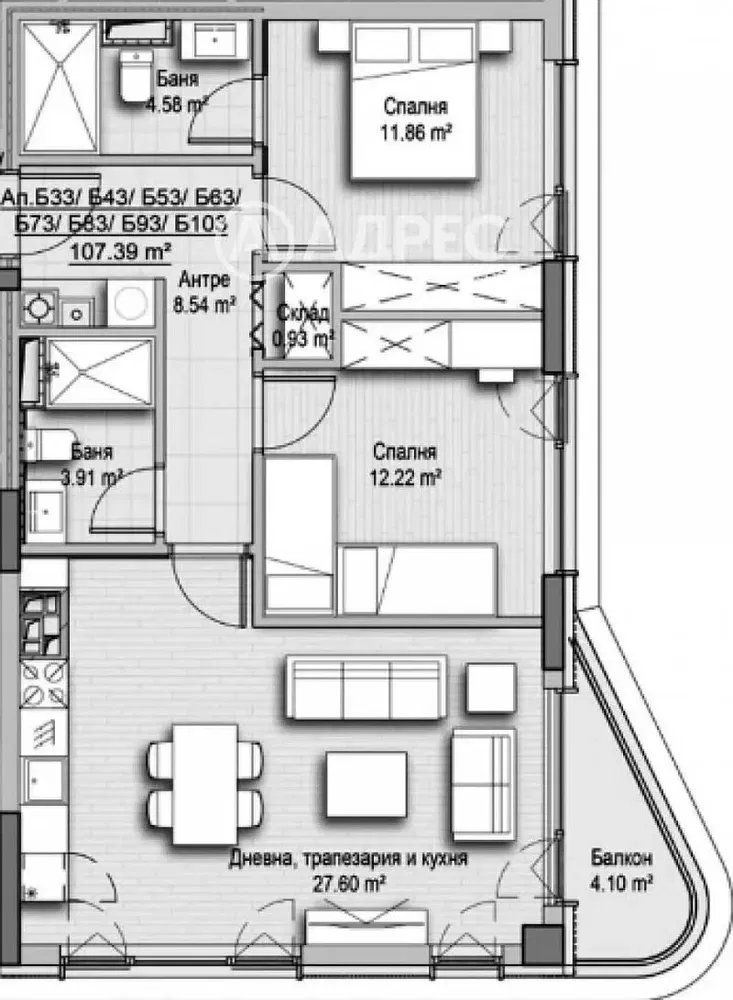
107 m²
Mostrar no mapa
Adicionar aos favoritos
Compartilhar
quarto
atypical
plano
107 m²
banheiros
1
elevador
Não
estacionamento
Não
estado
Outro
porão
Não
terraço
Não
Descrição
Traduzir para Inglês
Тристаен апартамент с площ от 107 кв.м. ,състоящ се от антре, голяма дневна с кухненски бокс, две спални, две бани с тоалетни и тераса . Този трист...
Mostrar descrição completa
Parâmetros
Gerado por IA
Terraço
Visualizar
Parâmetros
Propriedade:
Outro
Estado:
Outro
Tipo de construção:
Outro
Tipo de aquecimento:
Outro
Equipamento:
Outro
Idade da oferta:
69dias
Atualizado:
43dias
Denunciar anúncio
Localidades
A localização é aproximada, não sabemos o endereço exato.
Solicite o endereço exato.
Ampliar mapa
serviços cívicos
АДРЕС НЕДВИЖИМИ ИМОТИ
Mostrar telefone
Contate o vendedor
АДРЕС НЕДВИЖИМИ ИМОТИ
Mostrar telefone
Contate o vendedor
Anúncios semelhantes
Semelhante no exterior
Venda
Apartamentos
Bulgária