Sprzedaż
Wynajem
Blog
O nas
+ Dodaj ofertę
Menu
Lista ofert
13
13
13
467 362 PLN
(10 386 PLN / m²)
Sprzedaż
3
1
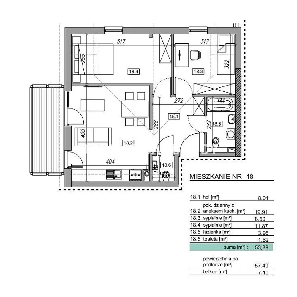
45 m²
Zawada, Zawada
Pokaż na mapie
Do ulubionych
Udostępnij
sypialnia
0
obszar
45 m²
łazienki
1
winda
Nie
parkowanie
Nie
stan
piwnica
Nie
taras
Nie
Opis
NOWA INWESTYCJA DEWELOPERSKA - GOTOWA DO ZAMIESZKANIA! ATRAKCYJNE CENY - FUNKCJONALNE MIESZKANIA W SPOKOJNEJ OKOLICY Oferujemy: Funkcjonalne układy m...
Pokaż pełny opis
Parametry
Wygenerowane z AI
Widok
Poziom
Otwarta przestrzeń dzienna
Drewniana podłoga
Wysokie sufity
Naturalne światło
Po remoncie
Umeblowany
Przyjazne dla zwierząt domowych
Parametry
Własność:
Osobiste
Typ budynku:
Pozostałe
Typ ogrzewania:
Pozostałe
Wyposażenie:
Pozostałe
Wiek oferty:
23 dni
Zaktualizowano:
5 dni
Zgłoś reklamę
Lokalizacja
Zawada, Zawada
Lokalizacja jest orientacyjna, nie znamy dokładnego adresu.
Poprosić o dokładny adres
Powiększ mapę
Udogodnienia miejskie
BRACIA SADURSCY
Barbara Nazarewicz
Pokaż E-mail
Wyświetl telefon
Skontaktuj się ze sprzedawcą
BRACIA SADURSCY
Barbara Nazarewicz
Pokaż E-mail
Wyświetl telefon
Skontaktuj się ze sprzedawcą
Podobne oferty
|
Podobne za granicą
|
Sale
Apartments
Polska