Sprzedaż
Wynajem
Blog
O nas
+ Dodaj ofertę
Menu
Lista ofert
5
5
5
785 943 PLN
(14 035 PLN / m²)
Sprzedaż
3
1
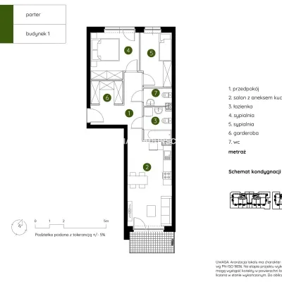
56 m²
Pękowicka, Kraków
Pokaż na mapie
Do ulubionych
Udostępnij
sypialnia
0
obszar
56 m²
łazienki
1
winda
Nie
parkowanie
Nie
stan
piwnica
Nie
taras
Nie
Opis
Z ogromną przyjemnością przedstawiamy Państwu ofertę mieszkania na sprzedaż w malowniczym rejonie Doliny Prądnika, na północy Krakowa, blisko granicy...
Pokaż pełny opis
Parametry
Wyposażenie & właściwości
Internet
Parametry
Własność:
Pozostałe
Typ budynku:
Pozostałe
Typ ogrzewania:
Pozostałe
Wyposażenie:
Pozostałe
Wiek oferty:
23 dni
Zaktualizowano:
4 dni
Zgłoś reklamę
Lokalizacja
Pękowicka, Kraków
Lokalizacja jest orientacyjna, nie znamy dokładnego adresu.
Poprosić o dokładny adres
Powiększ mapę
Udogodnienia miejskie
BRACIA SADURSCY
Patrycja Rubinkiewicz
Pokaż E-mail
Wyświetl telefon
Skontaktuj się ze sprzedawcą
BRACIA SADURSCY
Patrycja Rubinkiewicz
Pokaż E-mail
Wyświetl telefon
Skontaktuj się ze sprzedawcą
Podobne oferty
|
Podobne za granicą
|
Sale
Apartments
Polska