Sprzedaż
Wynajem
Blog
O nas
+ Dodaj nieruchomość
Menu
Lista ofert
6
6
6
1 049 947 PLN
(16 153 PLN / m²)
Sprzedaż
3
1
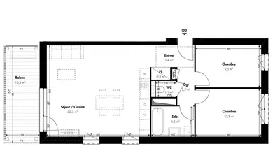
65 m²
Pokaż na mapie
Dodaj do ulubionych
Udostępnij
sypialnia
3
metraż
65 m²
łazienki
1
winda
NIE
parking
NIE
państwo
Inny
piwnica
NIE
taras
NIE
Opis
Przetłumacz na Polski
Au coeur de l'éco-quartier de Cantebonne à Villerupt - Appartement T3 de 65 m2 avec balcon. Situé dans un petit immeuble de 2 niveaux, appartement tra...
Pokaż pełny opis
Parametry
Wygenerowano ze sztucznej inteligencji
Oddzielna toaleta
Parametry
Własność:
Inny
Państwo:
Inny
Typ budynku:
Inny
Typ ogrzewania:
Inny
Sprzęt:
Inny
Wiek oferty:
405dni
Zaktualizowano:
269dni
Zgłoś reklamę
Miejscowości
Lokalizacja jest przybliżona, nie znamy dokładnego adresu.
Poproś o dokładny adres
Powiększ mapę
Udogodnienia w okolicy
Id Immobilier
Pokaż telefon
Skontaktuj się ze sprzedawcą
Id Immobilier
Pokaż telefon
Skontaktuj się ze sprzedawcą
Podobne reklamy
Podobne za granicą
Sprzedaż
Mieszkania
Francja