Verkoop
Huur
Blog
Over ons
+ Eigendom toevoegen
Menu
Lijst met aanbiedingen
12
12
12
237 816 €
(3 497 € / m²)
Verkoop
2
1
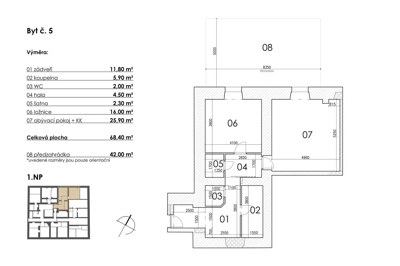
68 m²
Blanická, Postupice
Toon op de kaart
Toevoegen aan favorieten
Deel
slaapkamer
2
vlak
68 m²
badkamers
1
tillen
Nee
parkeren
Ja
staat
Ander
kelder
Ja
terras
Nee
Beschrijving
Vertalen naar Engels
Moderní byt s historickým nádechem – Postupice u Benešova
V unikátním projektu v Postupicích u Benešova nabízíme moderní byt 2+kk o velikosti 68,4 m² ...
Toon volledige beschrijving
Parameters
Uitrusting en functies
Tuinen
Parameters
Eigendom:
Persoonlijk
staat:
Ander
Energie-intensiteit:
E - Oneconomisch
gebouwtype:
Baksteen
Verwarmingstype:
floor, electric
Toon alle parameters
Leeftijd van het aanbod:
2dagen
Bijgewerkt:
2dagen
Rapporteer advertentie
Plaatsen
Blanická, Postupice
De locatie is bij benadering, we kennen het exacte adres niet.
Geef het exacte adres op.
Kaart vergroten
Openbare voorzieningen
Birdie reality s.r.o. - Century 21
Martina Veselská
E-mailadres weergeven
Toon telefoon
Neem contact op met de verkoper
Birdie reality s.r.o. - Century 21
Martina Veselská
E-mailadres weergeven
Toon telefoon
Neem contact op met de verkoper
Vergelijkbare advertenties
|
Vergelijkbaar in het buitenland
|
Verkoop
Appartementen
Tsjechië
Postupice