Verkoop
Huur
Blog
Over ons
+ Aanbieding toevoegen
Menu
Lijst van aanbiedingen
5
5
5
170 598 €
(3 877 € / m²)
Verkoop
2
1
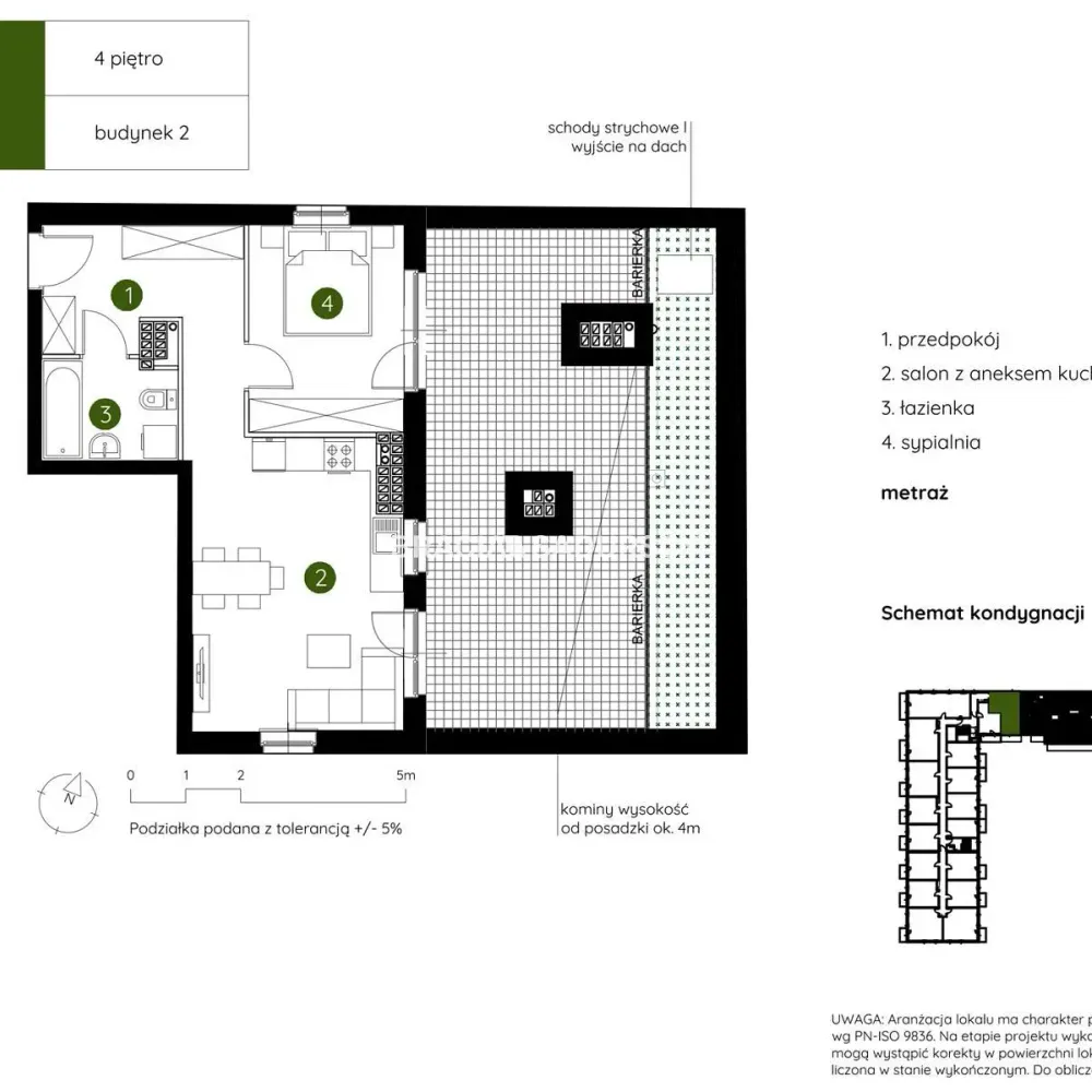
44 m²
Pękowicka, Kraków
Bekijken op de kaart
Aan favorieten
Delen
slaapkamer
0
gebied
44 m²
badkamers
1
lift
Nee
parkeren
Nee
status
kelder
Nee
terras
Nee
Omschrijving
Vertalen naar Engels
Z ogromną przyjemnością przedstawiamy Państwu ofertę mieszkania na sprzedaż w malowniczym rejonie Doliny Prądnika, na północy Krakowa, blisko granicy...
Volledige beschrijving weergeven
Parameters
Apparatuur & eigenschappen
Internet
Parameters
Eigendom:
Overig
Type gebouw:
Overig
Verwarmingstype:
Overig
Inrichting:
Andere
Leeftijd aanbieding:
23 dagen
Bijgewerkt:
5 dagen
Meld advertentie
Locatie
Pękowicka, Kraków
Locatie is indicatief, exacte adres onbekend.
Exact adres aanvragen
Vergroot kaart
Voorzieningen
BRACIA SADURSCY
Patrycja Rubinkiewicz
Bericht
Telefoon weergeven
Verkoper contacteren
BRACIA SADURSCY
Patrycja Rubinkiewicz
Bericht
Telefoon weergeven
Verkoper contacteren
Vergelijkbare aanbiedingen
|
Vergelijkbaar in het buitenland
|
Sale
Apartments
Polen