Verkoop
Huur
Blog
Over ons
+ Eigendom toevoegen
Menu
Lijst met aanbiedingen
5
183 800 €
(4 483 € / m²)
Verkoop
2
1
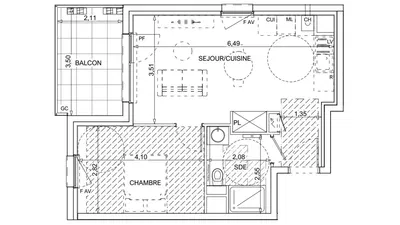
41 m²
Rue Clemenceau, Wintzenheim
Toon op de kaart
Toevoegen aan favorieten
Deel
slaapkamer
2
vlak
41 m²
badkamers
1
tillen
Ja
parkeren
Nee
staat
Ander
kelder
Nee
terras
Nee
Beschrijving
Vertalen naar Engels
iad France - Sarah Rozière (06 99 86 19 42) vous propose : Appartement T2 avec balcon à WintzenheimSituée rue Clemenceau à Wintzenheim, la résidence J...
Toon volledige beschrijving
Parameters
Uitrusting en functies
Tillen
Parameters
Eigendom:
Ander
staat:
Ander
gebouwtype:
Ander
Verwarmingstype:
Ander
Apparatuur:
Ander
Toon alle parameters
Leeftijd van het aanbod:
9dagen
Bijgewerkt:
1dagen
Rapporteer advertentie
Plaatsen
Rue Clemenceau, Wintzenheim
De locatie is bij benadering, we kennen het exacte adres niet.
Geef het exacte adres op.
Kaart vergroten
Openbare voorzieningen
IAD France
Toon telefoon
Neem contact op met de verkoper
IAD France
Toon telefoon
Neem contact op met de verkoper
Vergelijkbare advertenties
|
Vergelijkbaar in het buitenland
|
Verkoop
Appartementen
Frankrijk