Verkoop
Huur
Blog
Over ons
+ Eigendom toevoegen
Menu
Lijst met aanbiedingen
6
6
6
264 900 €
(5 636 € / m²)
Verkoop
2
1
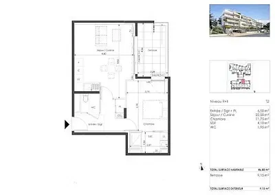
47 m²
Chemin des Buis, Sète
Toon op de kaart
Toevoegen aan favorieten
Deel
slaapkamer
2
vlak
47 m²
badkamers
1
tillen
Nee
parkeren
Nee
staat
Ander
kelder
Nee
terras
Nee
Beschrijving
Vertalen naar Engels
Imaginez votre quotidien dans cet appartement situé dans une résidence prisée, au sud du Mont Saint Clair, face à la Méditerranée, à quelques pas des ...
Toon volledige beschrijving
Parameters
Parameters
Eigendom:
Ander
staat:
Ander
gebouwtype:
Ander
Verwarmingstype:
Ander
Apparatuur:
Ander
Leeftijd van het aanbod:
2dagen
Bijgewerkt:
2dagen
Rapporteer advertentie
Plaatsen
Chemin des Buis, Sète
De locatie is bij benadering, we kennen het exacte adres niet.
Geef het exacte adres op.
Kaart vergroten
Openbare voorzieningen
Propriétés Privées
Toon telefoon
Neem contact op met de verkoper
Propriétés Privées
Toon telefoon
Neem contact op met de verkoper
Vergelijkbare advertenties
|
Vergelijkbaar in het buitenland
|
Verkoop
Appartementen
Frankrijk