Verkoop
Huur
Blog
Over ons
+ Eigendom toevoegen
Menu
Lijst met aanbiedingen
5
285 000 €
(3 800 € / m²)
Verkoop
3
1
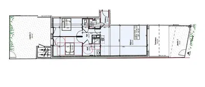
75 m²
Rue du Bourg, Givrand
Toon op de kaart
Toevoegen aan favorieten
Deel
slaapkamer
3
vlak
75 m²
badkamers
1
tillen
Ja
parkeren
Nee
staat
Ander
kelder
Nee
terras
Ja
Beschrijving
Vertalen naar Engels
iad France - Maryse Bonny (07 71 66 73 30) vous propose : Situé à 2 km de l'océan, ce programme neuf bénéficie d'un emplacement stratégique entre litt...
Toon volledige beschrijving
Parameters
Uitrusting en functies
Tillen
Parameters
Eigendom:
Ander
staat:
Ander
gebouwtype:
Ander
Verwarmingstype:
Ander
Apparatuur:
Ander
Leeftijd van het aanbod:
5dagen
Bijgewerkt:
2dagen
Rapporteer advertentie
Plaatsen
Rue du Bourg, Givrand
De locatie is bij benadering, we kennen het exacte adres niet.
Geef het exacte adres op.
Kaart vergroten
Openbare voorzieningen
IAD France
Toon telefoon
Neem contact op met de verkoper
IAD France
Toon telefoon
Neem contact op met de verkoper
Vergelijkbare advertenties
|
Vergelijkbaar in het buitenland
|
Verkoop
Appartementen
Frankrijk