Vendita
Affitto
Progetti di sviluppo
Blog
Chi siamo
+ Aggiungi proprietà
Tronco d'albero
Menu
Elenco delle offerte
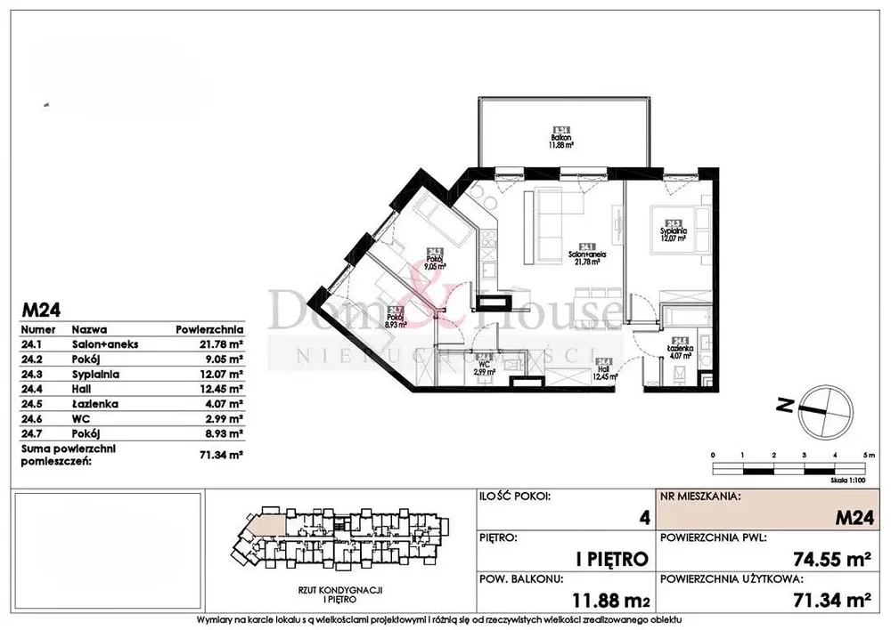
14
14
14
148 850 €
(2 011 € / mq)
Vendita
4
1
74 mq
Kosynierów, Rumia
Mostra sulla mappa
Aggiungi ai preferiti
Condividere
camera da letto
4
piatto
74 mq
bagni
1
sollevare
SÌ
parcheggio
NO
stato
Altro
seminterrato
NO
terrazza
NO
Descrizione
Traduci in Inglese
RABAT na mieszkania czteropokojowe - oszczędzasz aż 36 000 zł przy zakupie tego lokalu.
Kupujący nie płaci prowizji!
Jesteśmy partnerskim biurem sp...
Mostra la descrizione completa
Parametri
Attrezzatura e caratteristiche
Sollevare
Parametri
Proprietà:
Il tipo di proprietà determina il rapporto giuridico con la proprietà: personale, cooperativa o statale/comunale.
Altro
Stato:
Stato attuale dell'immobile dal punto di vista della ristrutturazione: prima, dopo o durante la ristrutturazione.
Altro
tipo di edificio:
Altro
Tipo di riscaldamento:
Altro
Attrezzatura:
Altro
Età dell'offerta:
65giorni
Aggiornato:
27giorni
Segnala annuncio
Località
Kosynierów, Rumia
La posizione è indicativa, non conosciamo l'indirizzo esatto.
Richiedere l'indirizzo esatto
Ingrandisci la mappa
Servizi civici
Dom & House
Mostra telefono
Contatta il venditore
Dom & House
Mostra telefono
Contatta il venditore
Annunci simili
Simili all'estero
Vendita
Appartamenti
Polonia
Contatta il venditore