Vendita
Noleggio
Blog
Chi siamo
+ Aggiungi offerta
Menu
Elenco delle offerte
5
96 300 €
(3 439 € / m²)
Vendita
2
1
28 m²
SAINTES
Mostra sulla mappa
Nei preferiti
Condividere
camera da letto
2
superficie
28 m²
bagni
1
ascensore
No
parcheggio
No
stato
Altro
seminterrato
No
terrazza
No
Descrizione
Traduci in inglese
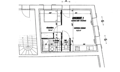
En Rez-de-Chaussée, un appartement en cours de rénovation (sera en état neuf) situé Quartier Saint Palais. Il se compose d'une entrée /cuisine/séjour...
Mostra descrizione completa
Parametri
Generato dall'AI
Ristrutturato
Piano
Parametri
Proprietà:
Altro
stato:
Altro
Tipo di edificio:
Altro
Tipo di riscaldamento:
Elettrico
Arredato:
Altro
Età dell'offerta:
12 giorni
Aggiornato:
12 giorni
Segnala annuncio
Località
SAINTES
La località è approssimativa, non conosciamo l'indirizzo esatto.
Richiedi l'indirizzo esatto
Ingrandire la mappa
Servizi civici
Cercle LOIRE - l'Adresse Saintes
Mostra telefono
Contatta venditore
Cercle LOIRE - l'Adresse Saintes
Mostra telefono
Contatta venditore
Annunci simili
|
Offerte simili all'estero
|
Vendita
Appartamenti
Francia