Venta
Alquiler
Blog
Sobre nosotros
+ Añadir propiedad
Menú
Listado de ofertas
128 750 €
(1 813 € / m²)
Venta
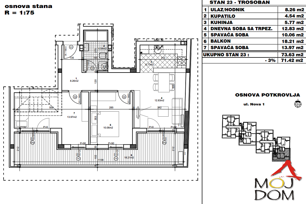
3
1
71 m²
PETROVARADIN, PETROVARADIN
Mostrar en el mapa
A favoritos
Compartir
dormitorio
3
área
71 m²
baños
1
ascensor
No
estacionamiento
No
estado
Otros
sótano
No
terraza
No
Descripción
Traducir a inglés
Petrovaradin! Vaš mali raj čeka samo na Vas!
Ušuškan, komforan stan, skladnog rasporeda u zgradi koju gradi pouzdan investitor nalaze se u mirnom kraj...
Mostrar descripción completa
Parámetros
Parámetros
Propiedad:
Otros
Estado:
Otros
Tipo de edificio:
Otros
Tipo de calefacción:
Gas
Amueblado:
Otros
Mostrar todos los parámetros
Antigüedad de la oferta:
291 días
Actualizado:
291 días
Reportar anuncio
Ubicación
PETROVARADIN, PETROVARADIN
La ubicación es aproximada, no conocemos la dirección exacta.
Solicitar dirección exacta
Expandir el mapa
Servicios cívicos
MOJ DOM - AGENCIJA ZA NEKRETNINE
Dragana Zorić
Mostrar Correo Electrónico
Mostrar teléfono
Contactar con el vendedor
MOJ DOM - AGENCIJA ZA NEKRETNINE
Dragana Zorić
Mostrar Correo Electrónico
Mostrar teléfono
Contactar con el vendedor
Ofertas similares
|
Similares en el extranjero
|
Venta
Apartamentos
Serbia