Venta
Alquiler
Blog
Sobre nosotros
+ Añadir propiedad
Menú
Listado de ofertas
5
5
5
166 647 €
(3 472 € / m²)
Venta
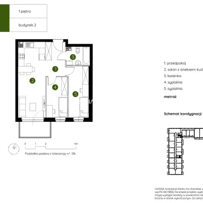
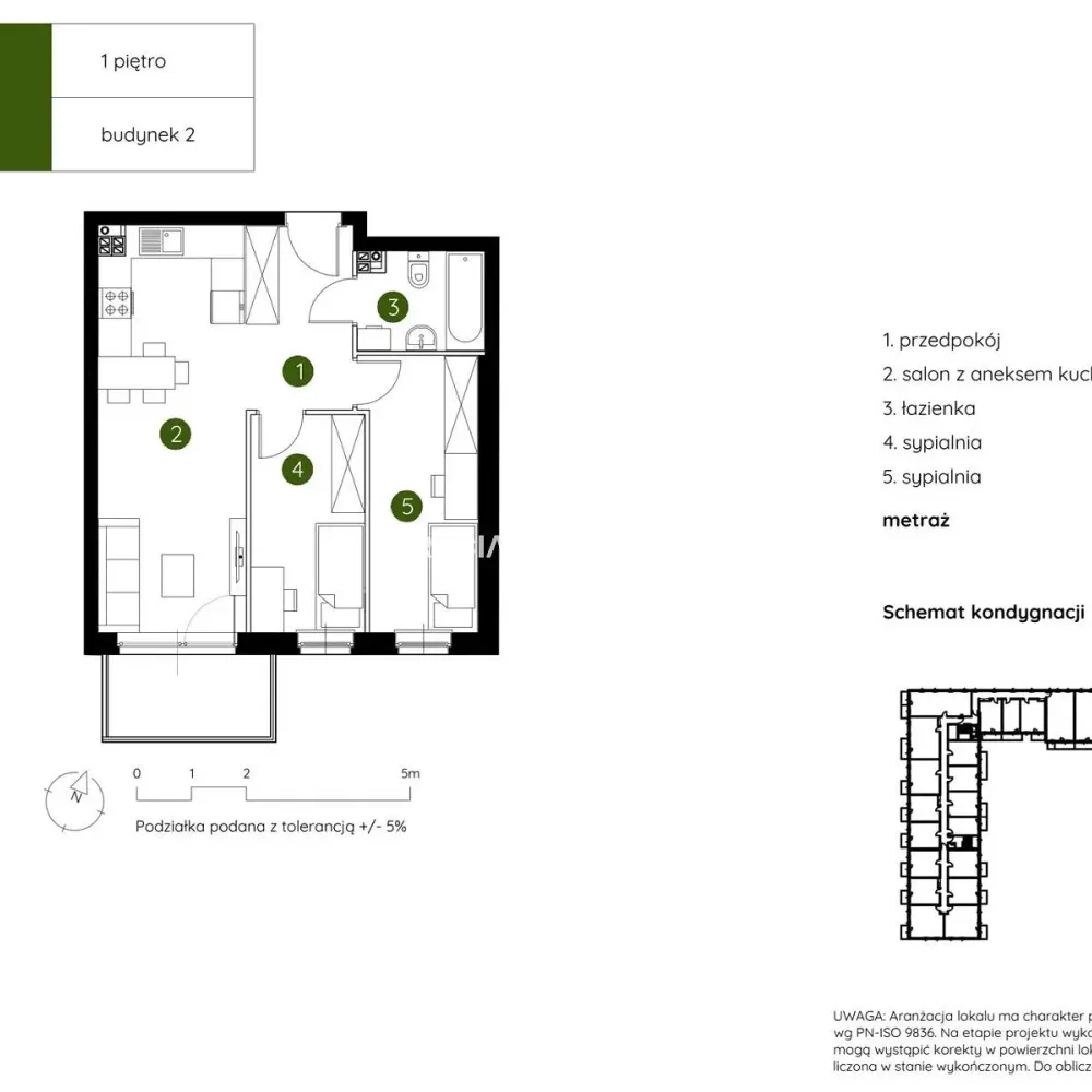
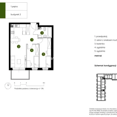
3
1
48 m²
Pękowicka, Kraków
Mostrar en el mapa
A favoritos
Compartir
dormitorio
0
área
48 m²
baños
1
ascensor
No
estacionamiento
No
estado
sótano
No
terraza
No
Descripción
Traducir a inglés
Z ogromną przyjemnością przedstawiamy Państwu ofertę mieszkania na sprzedaż w malowniczym rejonie Doliny Prądnika, na północy Krakowa, blisko granicy...
Mostrar descripción completa
Parámetros
Equipamiento & características
Internet
Parámetros
Propiedad:
Otros
Tipo de edificio:
Otros
Tipo de calefacción:
Otros
Amueblado:
Otros
Antigüedad de la oferta:
23 días
Actualizado:
5 días
Reportar anuncio
Ubicación
Pękowicka, Kraków
La ubicación es aproximada, no conocemos la dirección exacta.
Solicitar dirección exacta
Expandir el mapa
Servicios cívicos
BRACIA SADURSCY
Patrycja Rubinkiewicz
Mostrar Correo Electrónico
Mostrar teléfono
Contactar con el vendedor
BRACIA SADURSCY
Patrycja Rubinkiewicz
Mostrar Correo Electrónico
Mostrar teléfono
Contactar con el vendedor
Ofertas similares
|
Similares en el extranjero
|
Sale
Apartments
Polonia