Venta
Alquiler
Blog
Sobre nosotros
+ Añadir propiedad
Menú
Lista de ofertas
14
14
14
1 395 000 €
(10 984 € / m²)
Venta
4
1
127 m²
Rue Pouchet, Paris
Mostrar en el mapa
Añadir a favoritos
Compartir
dormitorio
4
departamento
127 m²
baños
1
elevar
No
aparcamiento
No
estado
Otro
sótano
No
terraza
No
Descripción
Traducir a Inglés
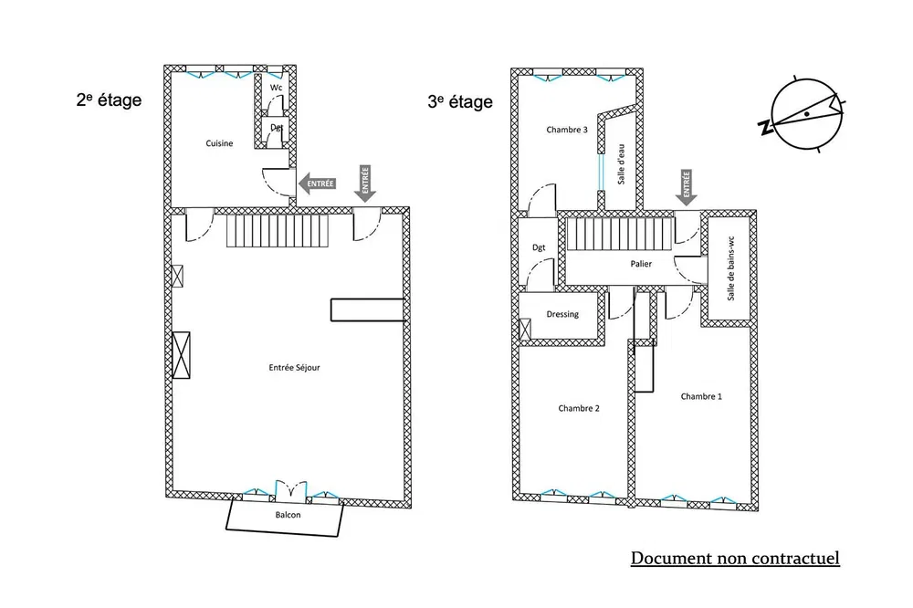
Situé au deuxième étage d'un hôtel particulier historique, ancienne demeure d'un célèbre peintre français, ce duplex traversant et récemment rénové de...
Mostrar descripción completa
Parámetros
Parámetros
Propiedad:
Otro
Estado:
Otro
Intensidad energética:
D - Menos económico
tipo de edificio:
Otro
Tipo de calefacción:
Gas
Mostrar todos los parámetros
Antigüedad de la oferta:
10días
Actualizado:
4días
Reportar anuncio
Localidades
Rue Pouchet, Paris
La ubicación es aproximada, no sabemos la dirección exacta.
Solicitar dirección exacta
Ampliar el mapa
Servicios cívicos
ESPACES ATYPIQUES Paris - ESPACES ATYPIQUES Paris - Ouest
Mostrar teléfono
Contactar al vendedor
ESPACES ATYPIQUES Paris - ESPACES ATYPIQUES Paris - Ouest
Mostrar teléfono
Contactar al vendedor
Anuncios similares
|
Similares en el extranjero
|
Venta
Apartamentos
Francia