Venta
Alquiler
Blog
Sobre nosotros
+ Añadir propiedad
Menú
Listado de ofertas
6
6
6
223 000 €
(5 068 € / m²)
Venta
2
1
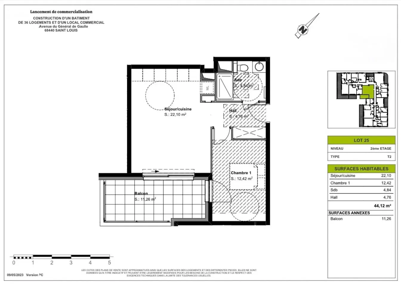
44 m²
Saint-Louis
Mostrar en el mapa
A favoritos
Compartir
dormitorio
2
área
44 m²
baños
1
ascensor
Sí
estacionamiento
No
estado
Otros
sótano
No
terraza
Sí
Descripción
Traducir a inglés
Découvrez ce beau F2 dans une résidence située à Saint-Louis en hyper centre, au coeur des 3 frontières, à proximité des commerces, des écoles, ainsi ...
Mostrar descripción completa
Parámetros
Equipamiento & características
Ascensor
Parámetros
Propiedad:
Otros
Estado:
Otros
Consumo energético:
B - Muy económico
Tipo de edificio:
Otros
Tipo de calefacción:
Otros
Mostrar todos los parámetros
Antigüedad de la oferta:
351 días
Actualizado:
350 días
Reportar anuncio
Ubicación
Saint-Louis
La ubicación es aproximada, no conocemos la dirección exacta.
Solicitar dirección exacta
Expandir el mapa
Servicios cívicos
Loralis Immobilier
Mostrar teléfono
Contactar con el vendedor
Loralis Immobilier
Mostrar teléfono
Contactar con el vendedor
Ofertas similares
|
Similares en el extranjero
|
Venta
Apartamentos
Francia