Venta
Alquiler
Blog
Sobre nosotros
+ Añadir propiedad
Menú
Listado de ofertas
2
2
289 900 €
(3 257 € / m²)
Venta
filters.disposition_4
1
89 m²
NARBONNE
Mostrar en el mapa
A favoritos
Compartir
dormitorio
4
área
89 m²
baños
1
ascensor
Sí
estacionamiento
No
estado
Otros
sótano
No
terraza
Sí
Descripción
Traducir a inglés
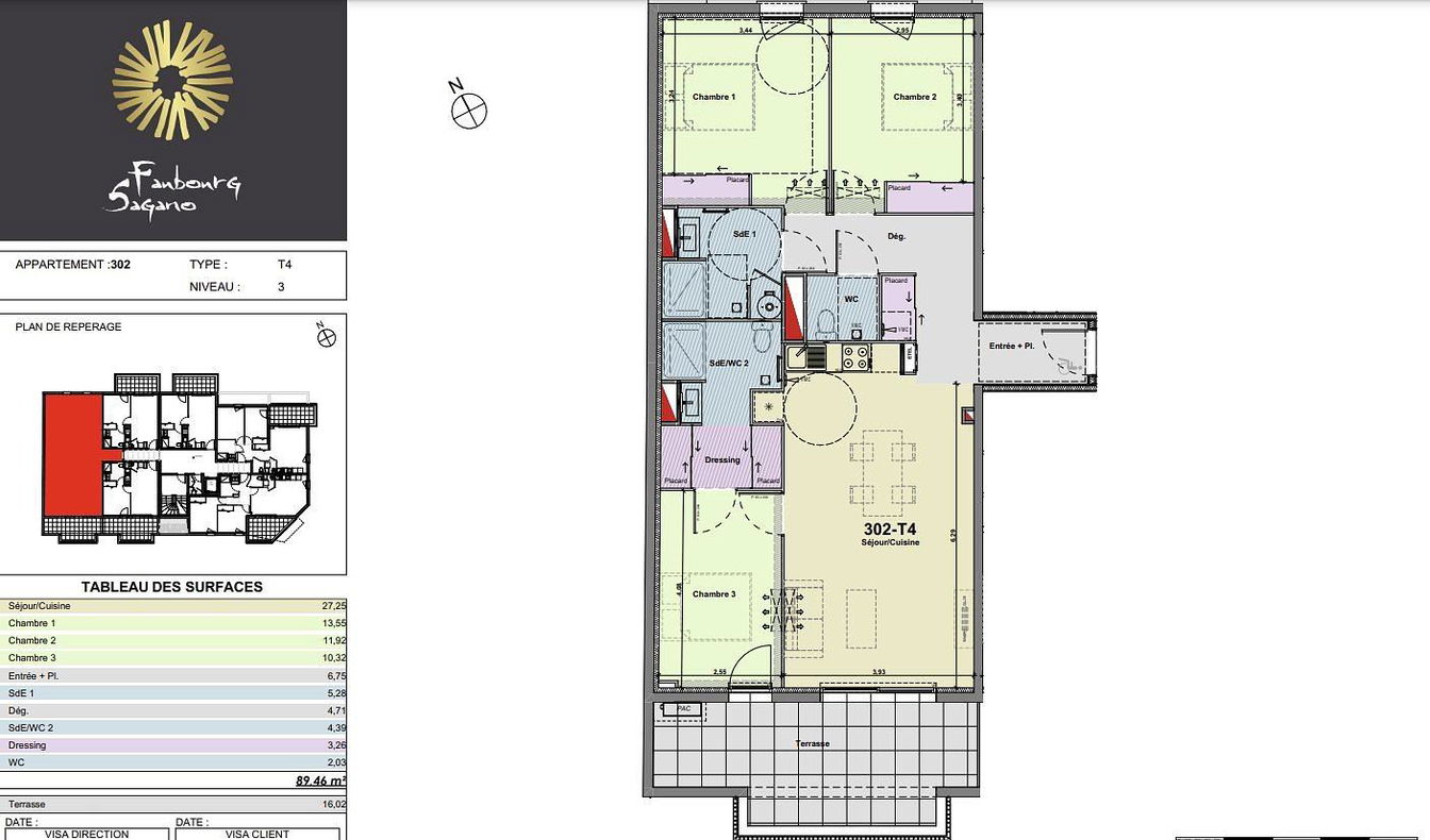
iad France - Fanny Aviles (06 12 77 85 43) vous propose : Appartement à vendre T4 neuf 89 m2 environ - 3 chambres avec placard dont une avec dressing ...
Mostrar descripción completa
Parámetros
Equipamiento & características
Ascensor
Parámetros
Propiedad:
Otros
Estado:
Otros
Tipo de edificio:
Otros
Tipo de calefacción:
Otros
Amueblado:
Otros
Mostrar todos los parámetros
Antigüedad de la oferta:
346 días
Actualizado:
345 días
Reportar anuncio
Ubicación
NARBONNE
La ubicación es aproximada, no conocemos la dirección exacta.
Solicitar dirección exacta
Expandir el mapa
Servicios cívicos
IAD France
Mostrar teléfono
Contactar con el vendedor
IAD France
Mostrar teléfono
Contactar con el vendedor
Ofertas similares
|
Similares en el extranjero
|
Venta
Apartamentos
Francia