Venta
Alquiler
Blog
Sobre nosotros
+ Añadir propiedad
Menú
Lista de ofertas
2
2
79 000 €
(1 162 € / m²)
Venta
2
1
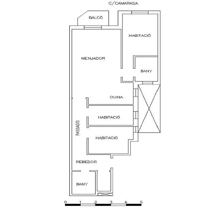
68 m²
Carretera de Camarasa, Balaguer
Mostrar en el mapa
Añadir a favoritos
Compartir
dormitorio
2
departamento
68 m²
baños
1
elevar
No
aparcamiento
No
estado
Otro
sótano
No
terraza
No
Descripción
Traducir a Inglés
NO COBRAMOS COMISIÓN DE INTERMEDIACIÓN AL COMPRADOR Excelente oportunidad de adquirir esta vivienda en propiedad ubicada en Balaguer (Lleida). INMUE...
Mostrar descripción completa
Parámetros
Parámetros
Propiedad:
Otro
Estado:
Otro
tipo de edificio:
Otro
Tipo de calefacción:
Otro
Equipo:
Otro
Antigüedad de la oferta:
42días
Actualizado:
7días
Reportar anuncio
Localidades
Carretera de Camarasa, Balaguer
La ubicación es aproximada, no sabemos la dirección exacta.
Solicitar dirección exacta
Ampliar el mapa
Servicios cívicos
Century 21 Nexus
Mostrar teléfono
Contactar al vendedor
Century 21 Nexus
Mostrar teléfono
Contactar al vendedor
Anuncios similares
Similares en el extranjero
Venta
Apartamentos
España