Sale
Rent
Blog
About Us
+ Add Offer
Menu
Listings
106 600 €
(1 974 € / sqm)
Sale
Atypical
1
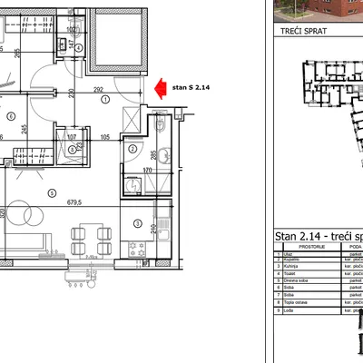
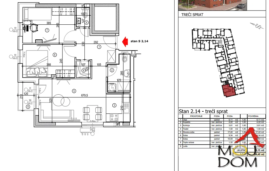
54 sqm
PETROVARADIN, PETROVARADIN
Show on Map
Add to Favorites
Share
bedroom
0
area
54 sqm
bathrooms
1
lift
No
parking
No
state
Other
basement
No
terrace
No
Description
Translate to English
Petrovaradin! Priroda i zelenilo!
Prodajemo stan na urbanoj ali izuzetno mirnoj lokaciji, u zgradi koju gradi pouzdan investitor, na svega 3km od str...
Show full description
Parameters
Parameters
Ownership:
Other
Status:
Other
Building Type:
Other
Heating Type:
Gas
Furnishing:
Other
Show all parameters
Age of Offer:
290 days
Updated:
289 days
Report the listing
Location
PETROVARADIN, PETROVARADIN
The location is approximate, we don't know the exact address.
Request exact address
Enlarge map
Community amenities
MOJ DOM - AGENCIJA ZA NEKRETNINE
Dragana Zorić
Show Email
Show Phone
Contact seller
MOJ DOM - AGENCIJA ZA NEKRETNINE
Dragana Zorić
Show Email
Show Phone
Contact seller
Similar offers
|
Similar Abroad
|
Sale
Apartments
Serbia