Sale
Rent
Blog
About Us
+ Add Offer
Menu
Listings
145 150 €
(1 814 € / sqm)
Sale
filters.disposition_4
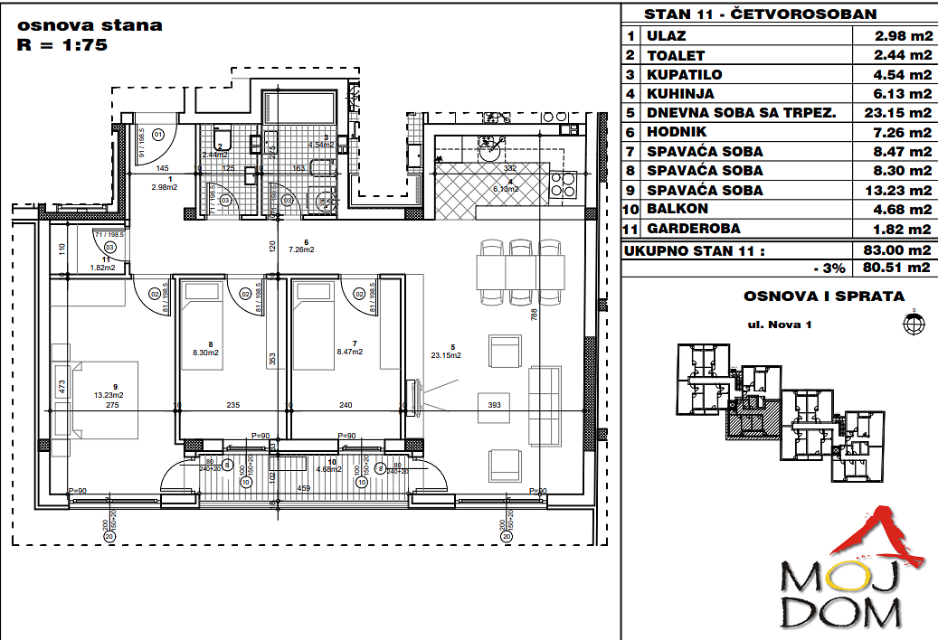
2+
80 sqm
PETROVARADIN, PETROVARADIN
Show on Map
Add to Favorites
Share
bedroom
4
area
80 sqm
bathrooms
2+
lift
No
parking
No
state
Other
basement
No
terrace
No
Description
Translate to English
Petrovaradin! Vaš mali raj čeka samo na Vas!
Ušuškan, komforan stan, skladnog rasporeda u zgradi koju gradi pouzdan investitor nalaze se u mirnom kraj...
Show full description
Parameters
Parameters
Ownership:
Other
Status:
Other
Building Type:
Other
Heating Type:
Gas
Furnishing:
Other
Show all parameters
Age of Offer:
297 days
Updated:
296 days
Report the listing
Location
PETROVARADIN, PETROVARADIN
The location is approximate, we don't know the exact address.
Request exact address
Enlarge map
Community amenities
MOJ DOM - AGENCIJA ZA NEKRETNINE
Dragana Zorić
Show Email
Show Phone
Contact seller
MOJ DOM - AGENCIJA ZA NEKRETNINE
Dragana Zorić
Show Email
Show Phone
Contact seller
Similar offers
|
Similar Abroad
|
Sale
Apartments
Serbia