Sale
Rent
Blog
About Us
+ Add Offer
Menu
Listings
5
5
5
202 299 €
(3 967 € / sqm)
Sale
Three
1
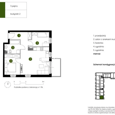
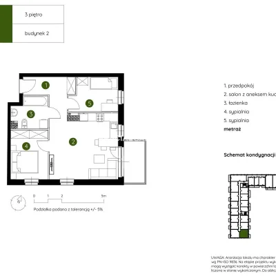
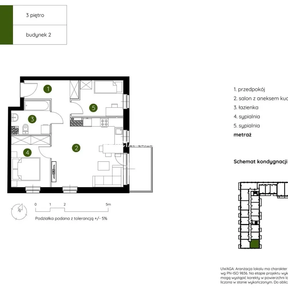
51 sqm
Pękowicka, Kraków
Show on Map
Add to Favorites
Share
bedroom
0
area
51 sqm
bathrooms
1
lift
No
parking
No
state
basement
No
terrace
No
Description
Translate to English
Z ogromną przyjemnością przedstawiamy Państwu ofertę mieszkania na sprzedaż w malowniczym rejonie Doliny Prądnika, na północy Krakowa, blisko granicy...
Show full description
Parameters
Equipment & Features
Internet
Parameters
Ownership:
Other
Building Type:
Other
Heating Type:
Other
Furnishing:
Other
Age of Offer:
23 days
Updated:
5 days
Report the listing
Location
Pękowicka, Kraków
The location is approximate, we don't know the exact address.
Request exact address
Enlarge map
Community amenities
BRACIA SADURSCY
Patrycja Rubinkiewicz
Show Email
Show Phone
Contact seller
BRACIA SADURSCY
Patrycja Rubinkiewicz
Show Email
Show Phone
Contact seller
Similar offers
|
Similar Abroad
|
Sale
Apartments
Poland