Prodej
Pronájem
Blog
O nás
+ Přidat nemovitost
Menu
Výpis nabídek
15
15
15
449 000 €
(6 068 € / m²)
Prodej
3
1
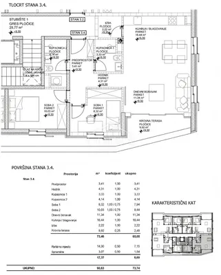
74 m²
Grad Cres
Zobrazit na mapě
Do oblíbených
Sdílet
ložnice
3
plocha
74 m²
koupelny
1
výtah
Ano
parkování
Ano
stav
Ostatní
suterén
Ne
terasa
Ne
Popis
Přeložit do angličtiny
U ponudi je jedina novogradnja u samom starom dijelu grada Cresa, smještena na svega 50 metara od mora, što je iznimna rijetkost koja se na tržištu po...
Zobrazit celý popis
Parametry
Vybavení & vlastnosti
Lodžie
Klimatizace
Garáž
Výtah
Vlastní parkování
Internet
Zahrada
Parametry
Vlastnictví:
Ostatní
Stav:
Ostatní
Typ budovy:
Ostatní
Typ vytápění:
Ostatní
Vybavení:
Ostatní
Stáří nabídky:
19 dní
Aktualizováno:
19 dní
Nahlásit inzerát
Lokalita
Grad Cres
Lokalita je orientační, neznáme přesnou adresu.
Požádat o přesnou adresu
Zvětšit mapu
Občanská vybavenost
Codex nekretnine
Gordana Grgat
Zobrazit E-mail
Zobrazit telefon
Kontaktovat prodejce
Codex nekretnine
Gordana Grgat
Zobrazit E-mail
Zobrazit telefon
Kontaktovat prodejce
Podobné inzeráty
|
Podobné v zahraničí
|
Sale
Apartments
Croatia