Sale
Rent
Blog
About Us
+ Add Offer
Menu
Listings
5
5
5
849 000 €
(6 432 € / sqm)
Sale
4 bedroom
2+
132 sqm
Maksimir
Show on Map
Add to Favorites
Share
bedroom
1
area
132 sqm
bathrooms
2+
lift
No
parking
No
state
Other
basement
No
terrace
Yes
Description
Translate to English
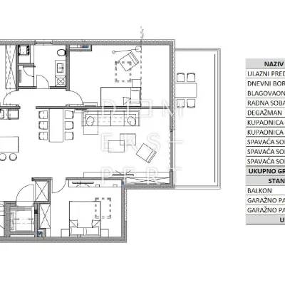
Prodaje se prostrani četverosobni stan u novogradnji u Zagrebu - Maksimir u zoni tramvaja.
Stan je orijentiran na sjever, jug i zapad, a nalazi se na ...
Show full description
Parameters
Equipment & Features
Air Conditioning
Parameters
Ownership:
Other
Status:
Other
Building Type:
Other
Heating Type:
Heat Pump
Furnishing:
Other
Show all parameters
Age of Offer:
401 days
Updated:
41 days
Report the listing
Location
Maksimir
The location is approximate, we don't know the exact address.
Request exact address
Enlarge map
Community amenities
Dom Ekspert DOM EKSPERT
Lorenzo Vinković
Show Email
Show Phone
Contact seller
Dom Ekspert DOM EKSPERT
Lorenzo Vinković
Show Email
Show Phone
Contact seller
Similar offers
|
Similar Abroad
|
Sale
Apartments
Croatia