Sale
Lease
Blog
About us
+ Add property
Menu
List of offers
44
44
44
615 610 €
(3 401 € / m²)
Sale
6+
2+
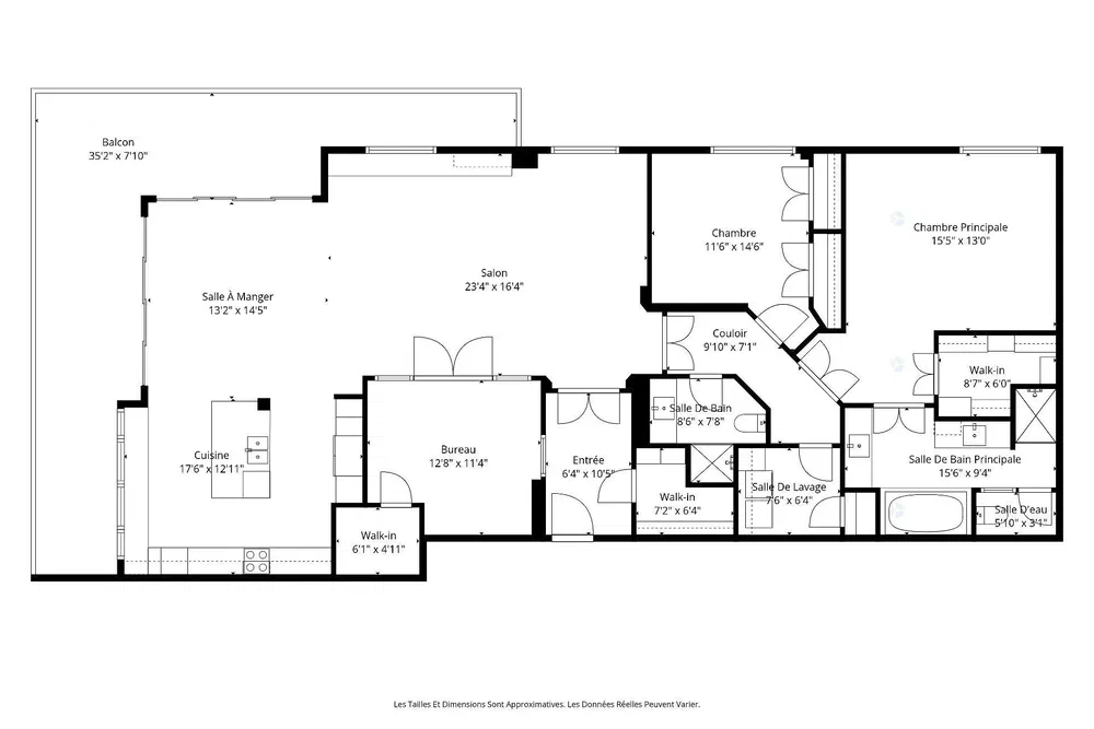
181 m²
Rue Wilfrid-Légaré, Québec
Show on map
Add to favorites
Share
bedroom
6+
flat
181 m²
bathrooms
2+
lift
Yes
parking
No
state
Other
basement
No
terrace
No
Description
Translate to English
Dans le quartier des Loges à Québec, un immeuble jouit d'un emplacement idéal et d'une vue à couper le souffle. Depuis ce condo d'angle de 181 m², vou...
Show full description
Parameters
Equipment & features
Lift
Parameters
Ownership:
Other
State:
Other
building type:
Other
Heating type:
Heat pump
Equipment:
Other
Age of the offer:
3days
Updated:
1days
Report ad
Localities
Rue Wilfrid-Légaré, Québec
The location is approximate, we do not know the exact address.
Request exact address
Enlarge map
Civic amenities
Engel & Völkers Québec
Show phone
Contact seller
Engel & Völkers Québec
Show phone
Contact seller
Similar ads
|
Similar abroad
|
Sale
Apartments
Canada