Sale
Rent
Blog
About us
+ Add property
Menu
Offer listings
19
19
19
185 234 £
(2 537 £ / sq m)
Sale
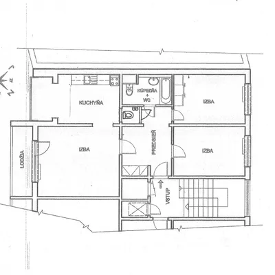
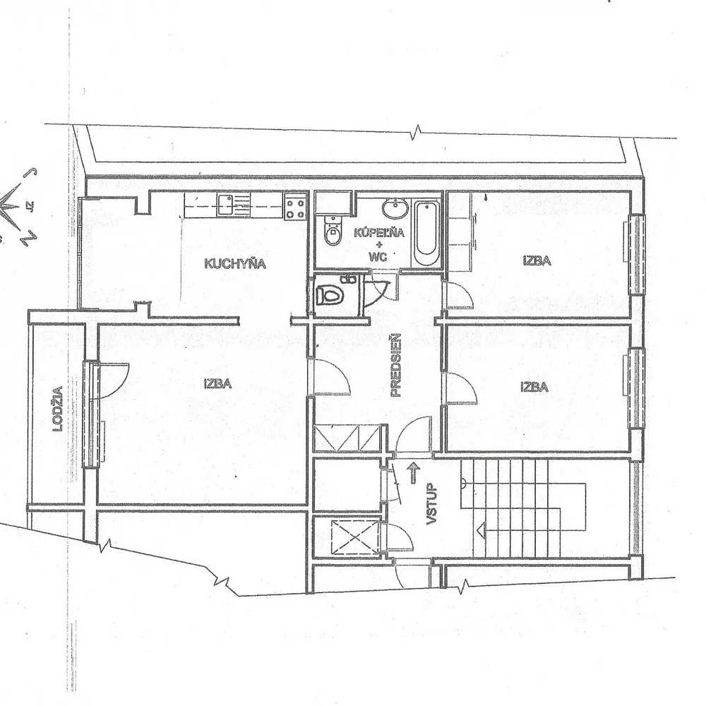
3
1
73 sq m
Kolískova , Bratislava - Karlova Ves
Show on map
Add to favourites
Share
bedroom
0
area
73 sq m
bathrooms
1
lift
Yes
parking
No
state
Partial reconstruction
basement
No
terrace
No
Description
Translate to English
Spoločnosť BHS Reality, z poverenia majiteľa, ponúka na predaj 3 izbový byt v bytovom dome na Kolískovej ulici, v bratislavskej Karlovej Vsi. Priestra...
Show full description
Parameters
Equipment & Features
Lift
Internet
Loggia
Parameters
Ownership:
Personal
State:
Partial reconstruction
Energy Efficiency:
B - Very economical
Building Type:
Panel
Heating type:
Central remote
Show all parameters
Offer's age:
754 days
Updated:
753 days
Report listing
Location
Kolískova, Bratislava - Karlova Ves
The location is approximate, we don't know the exact address.
Request precise address
Enlarge map
Civic amenities
BHS Reality, s.r.o.
Ing. Iva Bedejová, RSc.
Show Email
Show Phone
Contact seller
BHS Reality, s.r.o.
Ing. Iva Bedejová, RSc.
Show Email
Show Phone
Contact seller
Similar listings
|
Similar Abroad
|
Sale
Apartments
Slovakia